Vuokrataan - Helsinki
Suolakivenkatu 1, Herttoniemi, 00810 Helsinki #10744909
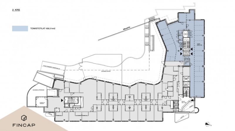
Vuokrataan Herttoniemenrannassa toisen kerroksen 436,5m2 toimistotila merinäköalalla Itäväylän vieressä hyvien kulkuyhteyksien varrella. Tilat ovat muunneltavissa toimistotilojen lisäksi mm. erilaisten lääkäri- tai kuntoutusasemien toimintaan. Talossa on toimistotilojen lisäksi Esperin hoivatoimintaa. Kiinteistössä on alkamassa laaja koko kiinteistön saneeraus. Saneeraus valmistuu keväällä 2024, tilasuunnitelmiin on mahdollista vaikuttaa. Kiinteistössä mm. lämmin parkkihalli, pyöräparkit ja lounasravintola.
Tiloista merinäköala
Metro 800m
Kauppakeskus Hertsi 800m
Päärautatieasema 6km
Lentokenttä 20km
Kysy lisää Jouko Raitanen Helsinki puh. 0504695444
RHG Real Estate
Hämeenkatu 2 B20, 20500 Turku
Näytä puhelinnumero
020 734 4020
Jouko Raitanen
Näytä puhelinnumero
050 469 5444
