Vuokrataan toimistotilat - Espoo
Linnoitustie 3, Leppävaara, 02600 Espoo #10744892
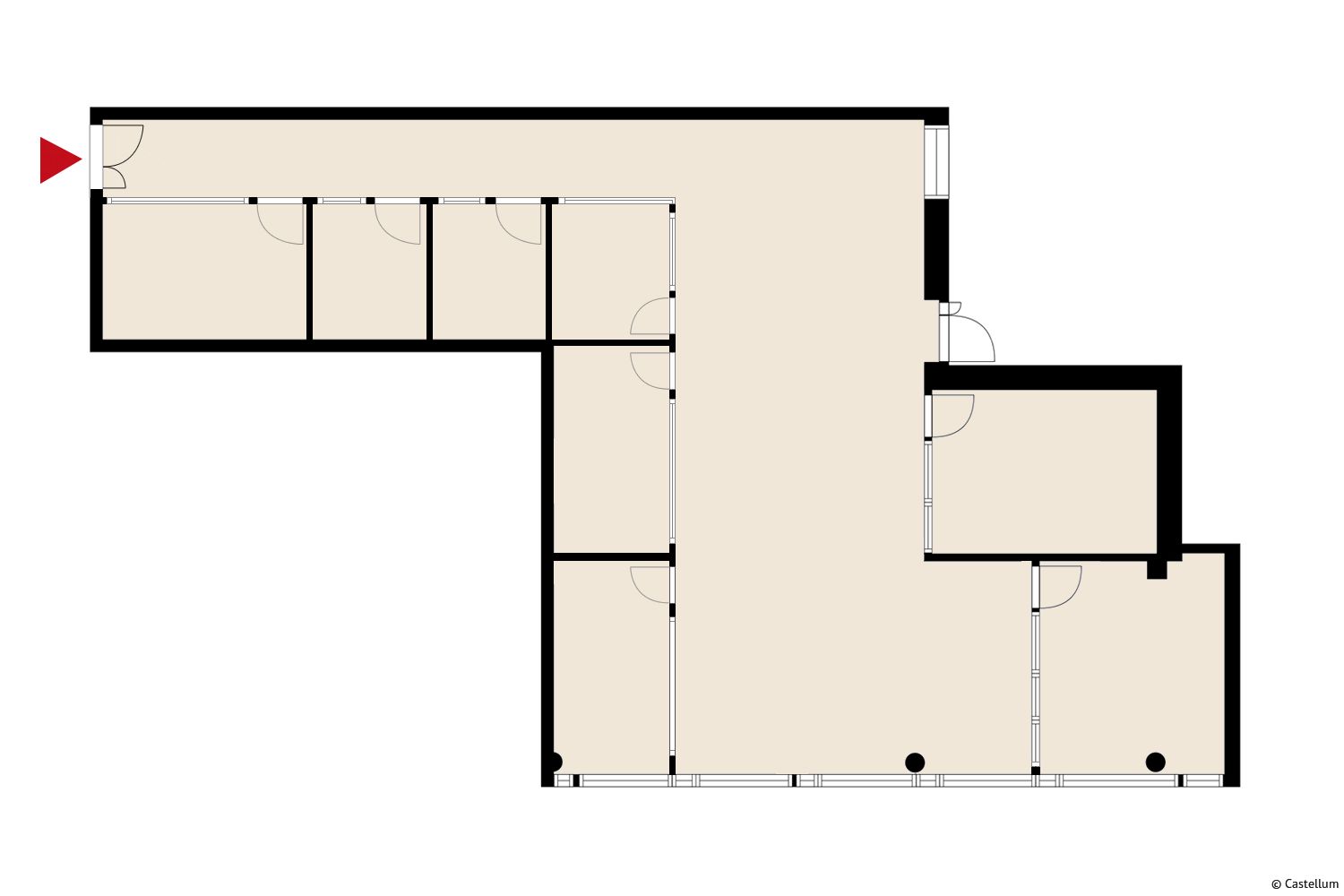
Vuokrataan moderni toimistotila Säteri Business Parkin 4. kerroksen pientoimistoalueelta. Kerroksen asiakkaiden yhteisessä käytössä on keittiö, lounge ja wc-tilat. Kiinteistö sijaitsee Raide-Jokerin varrella kivenheiton päässä Sellosta ja Leppävaaran juna-asemasta.
Osoite
Linnoitustie 3, 02600 Espoo
Tilatyyppi
Toimistotilaa
191 m2
Kiinteistö
Säteri Business Park - Linnoitus
Pysäköinti
Pysäköintipaikkoja vuokrattavissa kiinteistön välittömästä yhteydestä sijaitsevista pysäköintihalleista. Linnoituksen sisäänkäynnin yhteydessä maksullisia vieraspysäköintipaikkoja. Alueella myös kadunvarsipaikkoja.
Palvelut
Vuokrattavia neuvottelutiloja, aulapalvelu
Muuta
Tilan ominaisuudet: tilassa on ilmastointi, avo-/kombitoimisto
Vapautuu
Heti vapaa
Kerros
4.
Ota yhteyttä
Castellum
Verkkosaarenkatu 5
Näytä puhelinnumero
040 027 3614
Dinah Sjöholm
Näytä puhelinnumero
040 017 4984
Pyydä lisätietoa
