Videoesittely
Vuokrataan toimistotilat, työtilat - Porvoo
Linnankoskenkatu 28, 06100 Porvoo #10744876
Vuokrataan tasokkaita keskustan toimistohuoneita! 350 €/kk + alv
Osoite
Linnankoskenkatu 28, 06100 Porvoo
Tilatyyppi
Toimistotilaa
15 m2
Työtilaa
15 m2
Yhteensä
15 m2
Virtuaaliesittely
Vuokra
350 €/kk + alv
Vuokraan sisältyy vesi, lämpö
Muuta
Aivan Porvoon ydinkeskustassa on erikokoisia, tasokkaita toimistohuoneita vuokrattavana. Tilat on pintaremontoitu laadukkaasti muutama vuosi sitten. Toimistotilat ovat rakennuksen toisessa kerroksessa, johon on pääsy helposti hissillä tai portaiden kautta. Erinomaiset tilat esimerkiksi yksinyrittäjälle. Oman toimistohuoneen lisäksi vuokralaisella on käytössään yhteiset wc- ja keittiötilat.
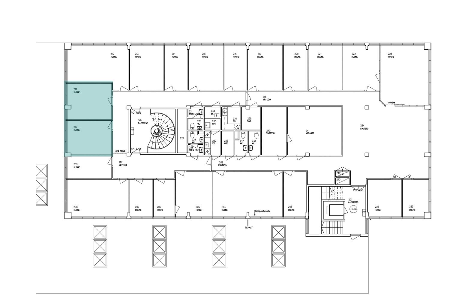
Vapaana olevat huoneet ovat merkitty pohjakuvaan keltaisella ja sinisellä (A ja B huoneet). Tällä hetkellä vapaana on vain B huoneita (isompia).
Hinnat seuraavasti: A-tilat 250 €/kk +alv ja B-tilat: 350 €/kk + alv
Kadulla on ilmaiset parkkipaikat.
Keskeinen sijainti, kaikki keskustan palvelut lähellä!
Kohdetiedot
Sijainti
Katuosoite: Linnankoskenkatu 28, 06100 Porvoo
Kaupunginosa: Keskusta
Ympäristö: Keskustan kaikki palvelut
Rakennus/huoneisto
Pinta-alat: Noin 10 ja 15 m² (ei tarkastusmitattu)
Huoneistoselitelmä: Omat toimistohuoneet ja yhteiset wc- ja keittiötilat
Hissi: Kyllä
Kerros: 2./4.
Kunto, varusteet ja palvelut: Remontoidut ja tasokkaat tilat
Vapautuu: Heti vapaana
Vuokrahinta ja kulut
Kuukausivuokra: A-tilat 250 €/kk +alv ja B-tilat: 350 €/kk + alv
Sähkö- ja siivouskulut: 23 €/kk + alv
Vesimaksu: Sisältyy vuokraan
Lämmitys: Kaukolämpö (sisältyy vuokraan)
Muuta: Minimisopimuskausi 12 kk, vakuus 3 kk:n vuokraa vastaava summa, luottotietojen oltava kunnossa
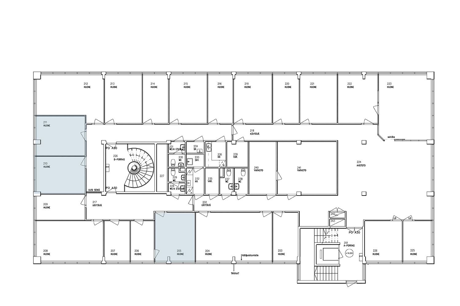
Vapaana olevat huoneet ovat merkitty pohjakuvaan keltaisella ja sinisellä (A ja B huoneet). Tällä hetkellä vapaana on vain B huoneita (isompia).
Hinnat seuraavasti: A-tilat 250 €/kk +alv ja B-tilat: 350 €/kk + alv
Kadulla on ilmaiset parkkipaikat.
Keskeinen sijainti, kaikki keskustan palvelut lähellä!
Kohdetiedot
Sijainti
Katuosoite: Linnankoskenkatu 28, 06100 Porvoo
Kaupunginosa: Keskusta
Ympäristö: Keskustan kaikki palvelut
Rakennus/huoneisto
Pinta-alat: Noin 10 ja 15 m² (ei tarkastusmitattu)
Huoneistoselitelmä: Omat toimistohuoneet ja yhteiset wc- ja keittiötilat
Hissi: Kyllä
Kerros: 2./4.
Kunto, varusteet ja palvelut: Remontoidut ja tasokkaat tilat
Vapautuu: Heti vapaana
Vuokrahinta ja kulut
Kuukausivuokra: A-tilat 250 €/kk +alv ja B-tilat: 350 €/kk + alv
Sähkö- ja siivouskulut: 23 €/kk + alv
Vesimaksu: Sisältyy vuokraan
Lämmitys: Kaukolämpö (sisältyy vuokraan)
Muuta: Minimisopimuskausi 12 kk, vakuus 3 kk:n vuokraa vastaava summa, luottotietojen oltava kunnossa
Vapautuu
Heti
Kerros
2 / 4
Näkyvällä paikalla
Hissi
Ota yhteyttä
Tilat.fi
KTM, LKV Antti Soivio
Näytä puhelinnumero
0400-446553
OTM, LKV Riikka Tuominen
Näytä puhelinnumero
0400-551790
KTM, LKV Maria-Sofia Puhakka
Näytä puhelinnumero
0400-150330
MBA Susanne Wallenius
Näytä puhelinnumero
0400-128877
LKV Tilat.fi OY on toimitilojen välitykseen erikoistunut yritys.
http://www.tilat.fiPyydä lisätietoa
