Vuokrataan toimistotilat - Helsinki
Valimotie 13, Pitäjänmäki, 00380 Helsinki #10744846
Muuntojoustavaa toimistotilaa Pitäjänmäellä.
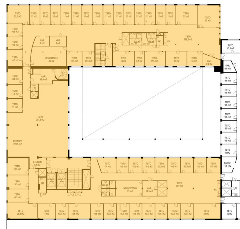
Tämä 1624m2 tilakokonaisuus sijaitsee kiinteistön 3. kerroksessa. Tila koostuu 627m2, 297,5m2 ja 699,5m2 kokonaisuuksista. Tilat ovat muokattavissa yrityksen tarpeiden mukaan.
Valimotie 13A:n tilat ovat perusteellisesti saneerattu ja tekniikka nykyaikaistettu. Tiloissa on koneellinen, jäähdytetty ilmanvaihto. Kiinteistössä on kaksi tavarahissiä ja lastausalue parkkihallissa. Lisäksi kiinteistössä on aulapalvelu ja suosittu, oma lounasravintola Factory.
Kysy lisää numerosta 044 723 4700 tai info@bref.fi. Palvelumme on tilanhakijoille ilmainen.
Hissi
Bureau Real Estate Finland Oy
Lars Sonckin kaari 16, 02600 Espoo
Näytä puhelinnumero
0447234700
Bureau Real Estate Finland Oy
https://www.bref.fi