Vuokrataan toimistotilat - Helsinki
Oulunkylän tori 1, Oulunkylä, 00640 Helsinki #10744790
Nyt vuokrattavana idyllinen toimistohuoneisto Oulunkylässä! Vuokra 1’950 €/kk, alv-vapaa
Osoite
Oulunkylän tori 1, 00640 Helsinki
Tilatyyppi
Toimistotilaa
140 m2
Vuokra
1’950 €/kk, alv-vapaa
Muuta
Etsitkö ihastuttavaa toimistotilaa? Arvostatko vanhojen puurakennusten lämmintä henkeä? Nyt Oulunkylän vanhassa juna-asemarakennuksessa on tarjolla huoneisto juuri sinulle!
Noin 140 m² huoneistossa, entisessä asemapäällikön asunnossa, on kauniit ikkunat, joista siivilöityy lempeästi valoa tilaan. Idyllisen tunnelman kruunaa kolme upeaa kaakeliuunia sekä pönttöuuni, jotka tosin eivät ole käytössä.
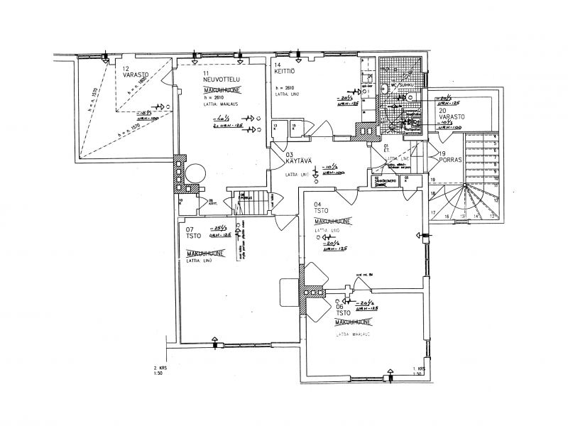
Huoneistossa on neljä toimistohuonetta, keittiö, siisti wc- ja suihkutila, siivouskomero, varasto sekä eteinen. Toimisto on rakennuksen toisessa kerroksessa ja sinne johtaa tyyliin sopiva puuportaikko.
Tiloissa on juuri tehty remontti. Lattioista on poistettu muovimatot ja alkuperäiset lautalattiat on kunnostettu. Pohjapiirustuksessa näkyvien toimistohuoneiden 06 ja 07 välille on avattu oviaukko. Myös seinät on maalattu.
Vuokralaisella on pihassa käytettävissään kaksi omaa autopaikkaa sekä muutama yhteiskäytössä oleva paikka. Alueelle pääsee helposti myös bussilla ja junalla. Oulunkylän palvelut ovat aivan vieressä.
Tässä hurmaava huoneisto - tule ja tutustu!
Kohdetiedot
Sijainti
Katuosoite: Oulunkylän tori 1 A, 00640 Helsinki
Kaupunginosa: Oulunkylä
Ympäristö: Asuinrakennuksia, liiketiloja, kaupanpalveluita, junarata
Rakennus/huoneisto
Pinta-ala: Noin 140 m² (ei tarkistusmitattu)
Kiinteistötyyppi: Asuin- ja toimistorakennus
Tilatyyppi: Toimistohuoneisto
Kunto, varusteet ja palvelut: Hyvä kunto, neljä toimistohuonetta, keittiö, wc, suihku, siivouskomero, varasto, eteinen
Lämmitys: Kaukolämpö
Pysäköinti: Kaksi omaa autopaikkaa sekä muutama yhteiskäytössä oleva paikka pihassa
Vapautuu: Heti vapaa
Vuokrahinta ja kulut
Kuukausivuokra: 1’950 €/kk, alv-vapaa
Sähkö- ja vesimaksu, lämmitys ja jätehuolto: Yhteensä 150 €/kk
Muut ehdot: Vakuus 3 kk:n vuokraa vastaava summa, irtisanomisaika 3 kk, minimisopimus 12 kk, luottotietojen on oltava kunnossa
Noin 140 m² huoneistossa, entisessä asemapäällikön asunnossa, on kauniit ikkunat, joista siivilöityy lempeästi valoa tilaan. Idyllisen tunnelman kruunaa kolme upeaa kaakeliuunia sekä pönttöuuni, jotka tosin eivät ole käytössä.
Huoneistossa on neljä toimistohuonetta, keittiö, siisti wc- ja suihkutila, siivouskomero, varasto sekä eteinen. Toimisto on rakennuksen toisessa kerroksessa ja sinne johtaa tyyliin sopiva puuportaikko.
Tiloissa on juuri tehty remontti. Lattioista on poistettu muovimatot ja alkuperäiset lautalattiat on kunnostettu. Pohjapiirustuksessa näkyvien toimistohuoneiden 06 ja 07 välille on avattu oviaukko. Myös seinät on maalattu.
Vuokralaisella on pihassa käytettävissään kaksi omaa autopaikkaa sekä muutama yhteiskäytössä oleva paikka. Alueelle pääsee helposti myös bussilla ja junalla. Oulunkylän palvelut ovat aivan vieressä.
Tässä hurmaava huoneisto - tule ja tutustu!
Kohdetiedot
Sijainti
Katuosoite: Oulunkylän tori 1 A, 00640 Helsinki
Kaupunginosa: Oulunkylä
Ympäristö: Asuinrakennuksia, liiketiloja, kaupanpalveluita, junarata
Rakennus/huoneisto
Pinta-ala: Noin 140 m² (ei tarkistusmitattu)
Kiinteistötyyppi: Asuin- ja toimistorakennus
Tilatyyppi: Toimistohuoneisto
Kunto, varusteet ja palvelut: Hyvä kunto, neljä toimistohuonetta, keittiö, wc, suihku, siivouskomero, varasto, eteinen
Lämmitys: Kaukolämpö
Pysäköinti: Kaksi omaa autopaikkaa sekä muutama yhteiskäytössä oleva paikka pihassa
Vapautuu: Heti vapaa
Vuokrahinta ja kulut
Kuukausivuokra: 1’950 €/kk, alv-vapaa
Sähkö- ja vesimaksu, lämmitys ja jätehuolto: Yhteensä 150 €/kk
Muut ehdot: Vakuus 3 kk:n vuokraa vastaava summa, irtisanomisaika 3 kk, minimisopimus 12 kk, luottotietojen on oltava kunnossa
Vapautuu
Heti
Ota yhteyttä
Tilat.fi
KTM, LKV Antti Soivio
Näytä puhelinnumero
0400 446 553
OTM, LKV Riikka Tuominen
Näytä puhelinnumero
0400 551 790
KTM, LKV Maria-Sofia Puhakka
Näytä puhelinnumero
0400-150330
Yrityksen virallinen nimi: LKV Toimitilaa.fi Oy. Toimitilojen välitykseen erikoistunut yritys.
http://www.tilat.fiPyydä lisätietoa
