Vuokrataan liiketilat - Joensuu
Paljetie 5, Raatekangas, 80130 Joensuu #10744524
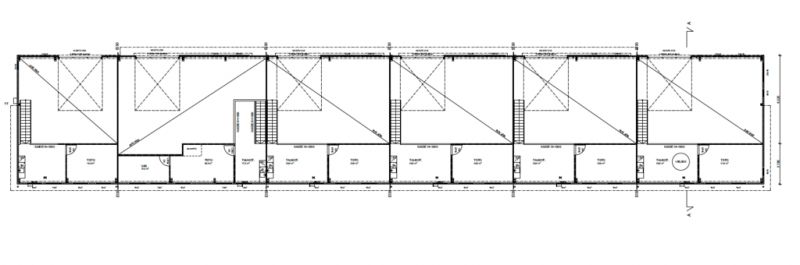
Rakenteilla uutta monikäyttöistä toimitilaa Joensuun Raatekankaan alueelle.
Nyt on tarjolla erinomainen tilaisuus päästä suunnittelemaan yrityksellenne sopivat toimitilat. Kiinteistö mahdollistaa toimitilat monenlaiseen toimintaan niin liike-, toimisto-, varasto-, kuin tuotantokäyttöön. Tilat toteutetaan täysin asiakaslähtöisesti, ja ne voidaan toteuttaa joko yhteen tai kahteen kerrokseen. Tilakokoja on saatavilla 200-2000m2 väliltä.
Paljetie 5 sijaitsee Raatekankaalla, joka on Joensuun yksi suosituimmista yritysalueista. Kiinteistöllä on hyvä sijainti lähellä valtateitä 6 ja 9. Alueella on useita teollisen alan toimijoita, autoiluun keskittyneitä yrityksiä, lounasravintola sekä kuluttajakauppaan keskittyneitä toimijoita, kuten Tokmanni, Sotka, Stadium ja Puuilo. Joensuun keskustaan on alle 10 minuutin ajomatka.
Kysy lisää numerosta 044 723 4700 tai info@bref.fi. Palvelumme on tilanhakijoille ilmainen.
Bureau Real Estate Finland Oy
Lars Sonckin kaari 16, 02600 Espoo
Näytä puhelinnumero
0447234700
Bureau Real Estate Finland Oy
https://www.bref.fi