Vuokrataan toimistotilat - Espoo
Tarvonsalmenkatu 17, Perkkaa, 02600 Espoo #10744327
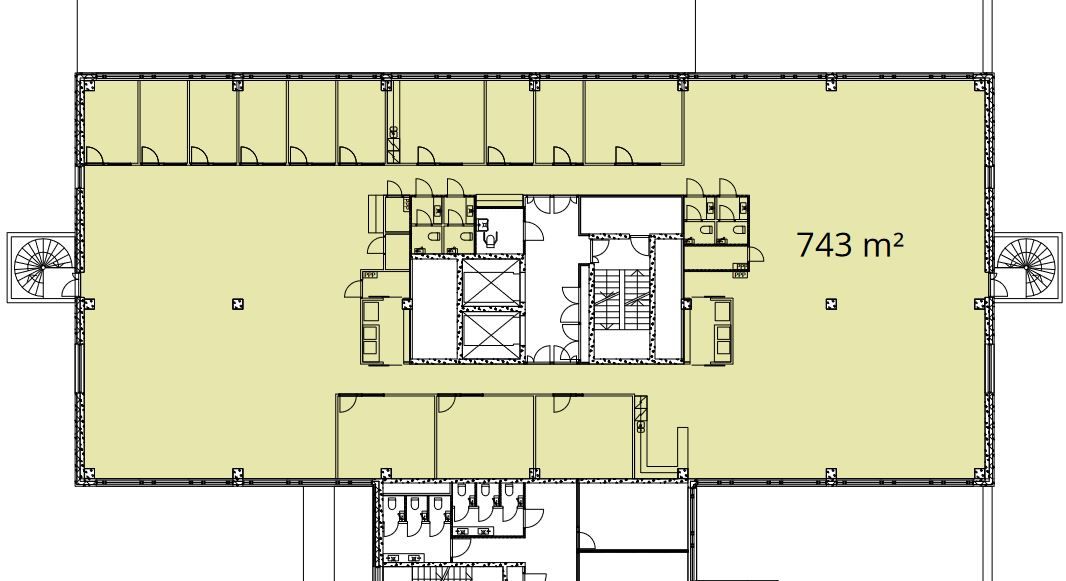
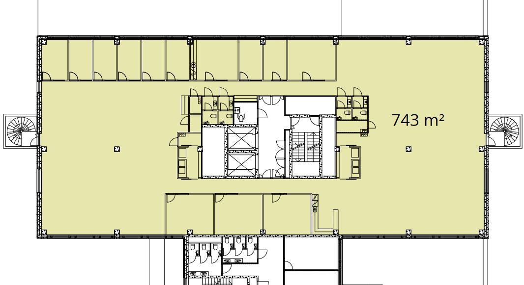
Vuokrataan muuntelukelpoinen koko kerroksen toimistotila, josta on hienot näkymät aina merelle asti. Neljä sisäänkäyntiä mahdollistaa tilan jakamisen eri tarpeisiin. Kiinteistö sijaitsee aivan Turunväylän läheisyydessä.
Kiinteistö sijaitsee hyvien kulkuyhteyksien varrella, aivan Turunväylän läheisyydessä.
Lisätietoja 020 7290 710. Lisää kohteita www.premises.fi
Kohteella ei ole lain edellyttämää energiatodistusta.Kerros: 4
Osoite
Tarvonsalmenkatu 17, 02600 Espoo
Tilatyyppi
Toimistotilaa
371 - 769 m2
Kulkuyhteydet
Erinomaiset liikenneyhteydet joka suuntaan sekä autolla, että julkisilla kulkuvälineillä.
Ota yhteyttä
CRE PREMISES
Puh. Näytä puhelinnumero 020 7290 710
Vantaankoskentie 14
01670 VANTAA
Pyydä lisätietoa
