Vuokrataan toimistotilat - Espoo
Tarvonsalmenkatu 17, Perkkaa, 02600 Espoo #10744324
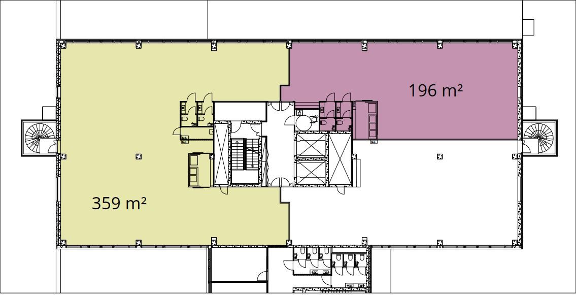
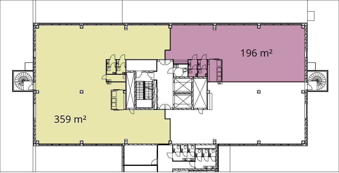
Vuokrattavana muuntojoustava neljännen kerroksen toimistotila, jossa erikokoisia 10-40 m2 työtiloja, oma keittiö, oleskelutila sekä wc-tilat. Mahdollista rakentaa esimerkiksi työhuoneita tarpeen mukaan.
Kiinteistö sijaitsee hyvien kulkuyhteyksien varrella, aivan Turunväylän läheisyydessä.
Lisätietoja 020 7290 710. Lisää kohteita www.premises.fi
Kohteella ei ole lain edellyttämää energiatodistusta.Kerros: 4
Osoite
Tarvonsalmenkatu 17, 02600 Espoo
Tilatyyppi
Toimistotilaa
769 - 359 m2
Kulkuyhteydet
Erinomaiset liikenneyhteydet joka suuntaan sekä autolla, että julkisilla kulkuvälineillä.
Ota yhteyttä
CRE PREMISES
Puh. Näytä puhelinnumero 020 7290 710
Vantaankoskentie 14
01670 VANTAA
Pyydä lisätietoa
