Vuokrataan toimistotilat - Helsinki
Vattuniemenranta 2, Lauttasaari, 00210 Helsinki #10744073
Vuokrattavana siistiä, omalla sisäänkäynnillä vastustettu toimistotilaa.
Osoite
Vattuniemenranta 2, 00210 Helsinki
Tilatyyppi
Toimistotilaa
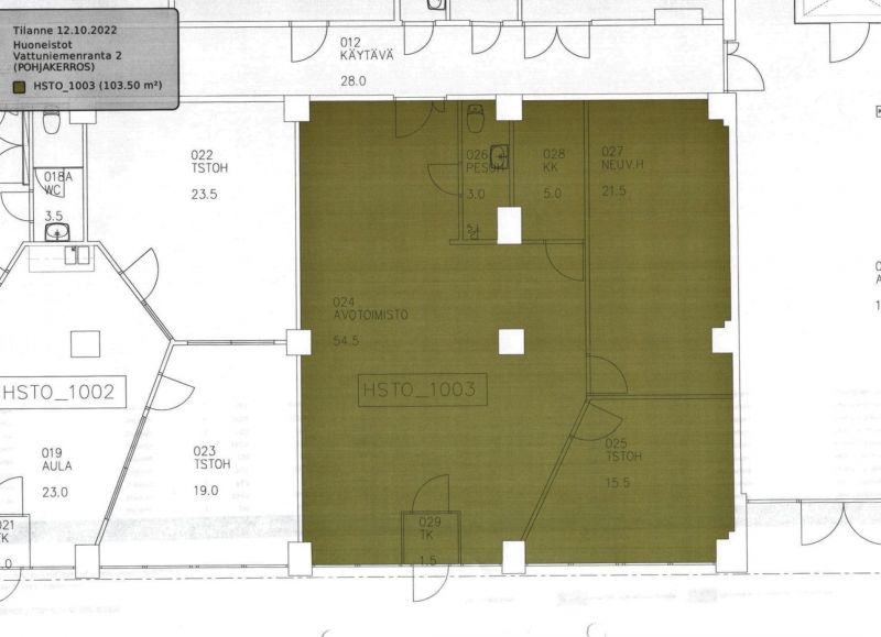
103,5 m2
Kiinteistö
Vuokrattavana siistiä, omalla sisäänkäynnillä vastustettu toimistotilaa Helsingin Lauttasaaressa. Toimitila käsittää reilut 50 m² avotilaa, kokoustilan ja pienemmän työhuoneen. Tila on muokattavissa asiakkaan tarpeen mukaan.
Sijainti
Lauttasaari, Helsinki
Pysäköinti
Pihalla vuokrattavia autopaikkoja.
Palvelut
-Lounasravintola
Kulkuyhteydet
- Metro
- Bussi
- Oma auto
- Bussi
- Oma auto
Vapautuu
Heti
Kerros
1
Energiatehokkuusluokka
Ei lain edellyttämää energiatodistusta
Näkyvällä paikalla
Hissi
Ota yhteyttä
REALIUM OY LKV
Tammasaarenkatu 1, 00180 Helsinki
Vaihde:
Näytä puhelinnumero
010 326 346
Tuomo Mäkelä
tuomo.makela@realium.fi
p.
Näytä puhelinnumero
044 050 1158
Joel Keto
joel.keto@realium.fi
p.
Näytä puhelinnumero
045 317 0330
KAIKKI TILAVAIHTOEHDOT KERRALLA!
SOITA - MEILAA JA TILAA NÄYTTÖ!
Ilmainen palvelu tilanhakijoille.
Kartoitamme parhaat tilavaihtoehdot.
Kaikki kohteet eivät ole netissä.
Pyydä lisätietoa
