Vuokrataan toimistotilat - Jyväskylä
Tikkutehtaantie 63, 40800 Jyväskylä #10743885
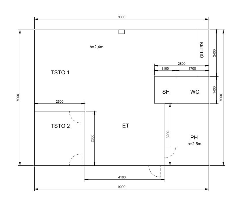
Vuokrataan hyväkuntoista toimistotilaa Vaajakoskelta. Toimisto koostuu avotilasta, toimistohuoneesta, keittiöstä sekä suihkullisista wc-tiloista. Ota yhteyttä esittelyä ja lisätietoja varten!
Katutasossa
Aveon Real Estate Oy
Kauppakatu 18 C 26, 40100 Jyväskylä
Henri Kumpulainen
Puh.
Näytä puhelinnumero
040 864 3631
henri.kumpulainen@aveon.fi
Olemme kiinteistöliiketoiminnan asiantuntija, joka toimii yrittäjämäisesti neuvonantajana kiinteistökaupoissa, toimitilavälittämisessä sekä kiinteistökehityksessä.
Asiakkaitamme ovat kotimaiset ja ulkomaiset kiinteistönomistajat, -sijoittajat sekä tilojen käyttäjät kaikkialla Suomessa.
