Vuokrataan toimistotilat - Helsinki
Valimotie 17-19, Pitäjänmäki, 00380 Helsinki #10743511
Nykyaikaista, jäähdytettyä toimistotilaa Pitäjänmäessä.
Osoite
Valimotie 17-19, 00380 Helsinki
Tilatyyppi
Toimistotilaa
356 m2
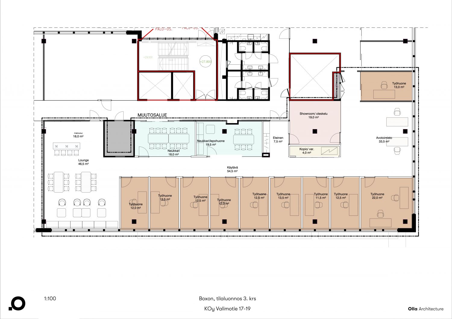
Pohjapiirros
Kiinteistö
3. kerroksen muokattavissa oleva 356 m² toimisto.
Pitäjänmäen Valimo on huolella uudistettu toimistorakennus valmiina tuleville menestystarinoille. Valimossa yhdistyvät laadukkaat, viihtyisät toimistotilat ja tehokkaat tilaratkaisut.
Liikenneyhteydet Valimoon ovat erinomaiset, sinne on helppo tulla ja sieltä pääsee kätevästi kaikkialle. Kiinteistössä on 454 autopaikkaa ja myös tuleva pikaraitiotie tulee parantamaan yhteyksiä Pitäjänmäen alueelle merkittävästi.
Palvelut ovat erittäin monipuoliset. Valimossa aulapalveluista huolehtivat osaavat ja ystävälliset asiakaspalvelun ammattilaiset. He pitävät huolta muun muassa vastaanotosta, kokouspalveluista, postituksesta ja useista toimistotehtävistä. Ammattimainen aulapalvelu on osaltaan myös yrityksesi käyntikortti.
Valimon eräs ylpeys on monipuolinen ja hyvin varusteltu kuntosali. Vietä hetki liikunnan parissa omalla työpaikallasi, päivän alussa, lomassa tai päätteeksi. Se kannattaa! Eikä tässä vielä kaikki – alakerran liikunta- ja saunatilojen yhteydessä on myös uima-allas, johon voi pulahtaa virkistävälle uinnille sekä poreallas, johon pulahtamalla pääsee irti työrutiineista.
Valimon tilaratkaisut sopivat erinomaisesti erilaisille yrityksille ja toimialoille. Omien toimitilojen lisäksi tarjolla on runsaasti muun muassa varattavia kokous- ja työtiloja.
Pitäjänmäen Valimo on huolella uudistettu toimistorakennus valmiina tuleville menestystarinoille. Valimossa yhdistyvät laadukkaat, viihtyisät toimistotilat ja tehokkaat tilaratkaisut.
Liikenneyhteydet Valimoon ovat erinomaiset, sinne on helppo tulla ja sieltä pääsee kätevästi kaikkialle. Kiinteistössä on 454 autopaikkaa ja myös tuleva pikaraitiotie tulee parantamaan yhteyksiä Pitäjänmäen alueelle merkittävästi.
Palvelut ovat erittäin monipuoliset. Valimossa aulapalveluista huolehtivat osaavat ja ystävälliset asiakaspalvelun ammattilaiset. He pitävät huolta muun muassa vastaanotosta, kokouspalveluista, postituksesta ja useista toimistotehtävistä. Ammattimainen aulapalvelu on osaltaan myös yrityksesi käyntikortti.
Valimon eräs ylpeys on monipuolinen ja hyvin varusteltu kuntosali. Vietä hetki liikunnan parissa omalla työpaikallasi, päivän alussa, lomassa tai päätteeksi. Se kannattaa! Eikä tässä vielä kaikki – alakerran liikunta- ja saunatilojen yhteydessä on myös uima-allas, johon voi pulahtaa virkistävälle uinnille sekä poreallas, johon pulahtamalla pääsee irti työrutiineista.
Valimon tilaratkaisut sopivat erinomaisesti erilaisille yrityksille ja toimialoille. Omien toimitilojen lisäksi tarjolla on runsaasti muun muassa varattavia kokous- ja työtiloja.
Vapautuu
Heti
Rakennusvuosi
1993
Kerros
3
Energiatehokkuusluokka
Ei lain edellyttämää energiatodistusta
Näkyvällä paikalla
Hissi
Ota yhteyttä
ScanReal Oy LKV
Opus Business Park
Hitsaajankatu 24
00810 Helsinki
info@scanreal.fi
Puh:
Näytä puhelinnumero
020 730 8830
Sopivat toimitilat yhdellä otolla!
Kartoitamme toimitilatarpeesi ja etsimme yrityksellesi parhaiten sopivat vapaat toimitilat. Koska vuokranantajat maksavat palvelumme, on tämä yrityksellesi veloituksetonta.
OTA YHTEYTTÄ - SOVI NÄYTTÖ!
Kaikki kohteemme eivät ole netissä, kerro tilatarpeesi niin kartoitamme vaihtoehdot.
Palvelumme on tilanhakijalle ilmainen
Pyydä lisätietoa
