Vuokrataan toimistotilat - Tampere
Hatanpään Valtatie 11, Ratina, 33100 Tampere #10743341
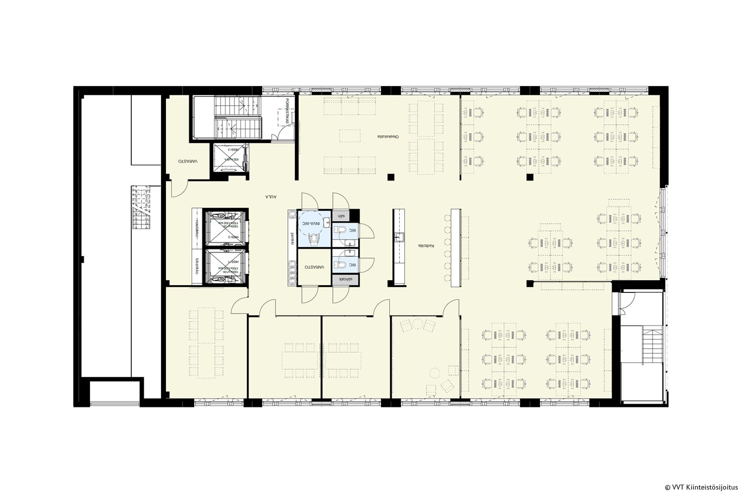
Vuokrattavissa ylimmän 8. kerroksen 453 m2 toimistotila, tila on laajennettavissa suuremmaksi kokonaisuudeksi alemman kerroksen kanssa, jolloin tilakoko olisi 906 m2. Tilasta löytyy tällä hetkellä avoalueita, työ- ja neuvotteluhuoneita sekä wc- ja keittiötilat, mutta tilaa on mahdollista muokata tulevan käyttäjän tarpeiden mukaan.
Ratinankaari kiinteistö sijaitsee aivan Ratinan kauppakeskuksen vieressä, joten kaikki keskustan palvelut ovat käden ulottuvilla. LEED Gold -ympäristösertifioidun rakennuksen laadukkaat palvelut, kuten aulapalvelut, viihtyisä lounasravintola ja tarvittaessa vuokrattavat neuvottelutilat, tekevät työympäristöstäsi entistä sujuvamman ja tehokkaamman.
Tilailmoituksessa käytetyt kuvat ovat mallikuvia muista tiloista sekä havainnekuvia siitä, millaiseksi tilat on mahdollista muokata.
VVT Kiinteistösijoitus Oy
Eteläesplanadi 8, 00130 Helsinki
Juho Ihanamäki
Näytä puhelinnumero
040 529 3212
Jan Olin
Näytä puhelinnumero
050 420 1170
VVT Kiinteistösijoitus on suomalaisten institutionaalisten sijoittajien omistama vastuullinen kiinteistösijoitusyhtiö, joka tarjoaa vuokralle kaiken tyyppisiä toimitiloja eri puolilta Suomea.
http://vvtkiinteistosijoitus.fi