Videoesittely
Vuokrataan liiketilat - Kuopio
Kauppakatu-Savonkatu, Keskusta, 70100 Kuopio #10743169
Liiketila & Myymälätila & Toimistotila
Osoite
Kauppakatu-Savonkatu, 70100 Kuopio
Tilatyyppi
Liiketilaa
1822 m2
Kiinteistö
Myymälätila, liiketila tai asiakaspalvelutila
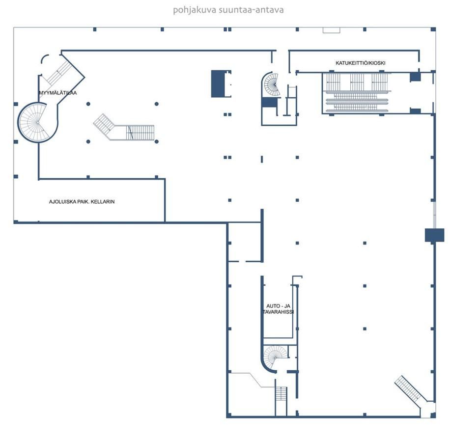
Keskellä Kuopiota on vuokrattavana n. 1800 m² kokonaisuus.
Kerroksesta löytyy valmiina mm. varastohuone, kaksi erillistä toimistohuonetta ja eteläpäädystä n. 60 m² toimistotila.
Tila soveltuu kaupankäyntiin myymälätilaksi saman tien ja muutostöillä vaivattomasti muuhun asiakaspalveluun.
Käyttötavarakauppa, Second hand -shop, tai mikä tahansa kauppaliike, joka arvostaa keskeistä sijaintia ydinkeskustassa.
Mikä on oma ehdotuksesi tilaan?
Kiinteistö ja sijainti
Kiinteistö on keskellä Kuopiota kävelykadulla. Kauppatorille on matkaa 1 minuutti. Asiakasvirta on jatkuvaa.
Tähän tilaan pääsee a) Kauppakadun kävelykadulta liukuportailla tai b) Kauppakeskus IsoCeen kautta tai c) Savonkadun kulmasta.
Useat sisääntuloreitit mahdollistavat tilan jakamisen pariin-kolmeen osaan.
Pysäköinti ja tavarankuljetus
Parkkiruutuja riittää niin katolla kuin parkkihallissa kahdessa kerroksessa.
Hissiyhteys parkkihallista ja lastauslaiturilta suoraan vuokrattavaan tilaan.
Lounaspaikkoihin, ruokakauppaan, kauppakeskus Minnaan sisäyhteydet.
Finnkino, K-Market, Candy Town, Hockey Base, MEGA Outlet samassa kokonaisuudessa.
Soita! Mennään yhdessä paikan päälle ja puidaan asiasta.
Keskellä Kuopiota on vuokrattavana n. 1800 m² kokonaisuus.
Kerroksesta löytyy valmiina mm. varastohuone, kaksi erillistä toimistohuonetta ja eteläpäädystä n. 60 m² toimistotila.
Tila soveltuu kaupankäyntiin myymälätilaksi saman tien ja muutostöillä vaivattomasti muuhun asiakaspalveluun.
Käyttötavarakauppa, Second hand -shop, tai mikä tahansa kauppaliike, joka arvostaa keskeistä sijaintia ydinkeskustassa.
Mikä on oma ehdotuksesi tilaan?
Kiinteistö ja sijainti
Kiinteistö on keskellä Kuopiota kävelykadulla. Kauppatorille on matkaa 1 minuutti. Asiakasvirta on jatkuvaa.
Tähän tilaan pääsee a) Kauppakadun kävelykadulta liukuportailla tai b) Kauppakeskus IsoCeen kautta tai c) Savonkadun kulmasta.
Useat sisääntuloreitit mahdollistavat tilan jakamisen pariin-kolmeen osaan.
Pysäköinti ja tavarankuljetus
Parkkiruutuja riittää niin katolla kuin parkkihallissa kahdessa kerroksessa.
Hissiyhteys parkkihallista ja lastauslaiturilta suoraan vuokrattavaan tilaan.
Lounaspaikkoihin, ruokakauppaan, kauppakeskus Minnaan sisäyhteydet.
Finnkino, K-Market, Candy Town, Hockey Base, MEGA Outlet samassa kokonaisuudessa.
Soita! Mennään yhdessä paikan päälle ja puidaan asiasta.
Vapautuu
Kysy
Kerros
2. kerros
Lastauslaituri
Ota yhteyttä
Logistila Oy
Ankkuritie 1, 70460 KUOPIO
Timo Puustinen
Näytä puhelinnumero
0400 33 00 30
Pyydä lisätietoa
