Vuokrataan varastotilat - Helsinki
Valokaari 10, Suutarila, 00750 Helsinki #10743025
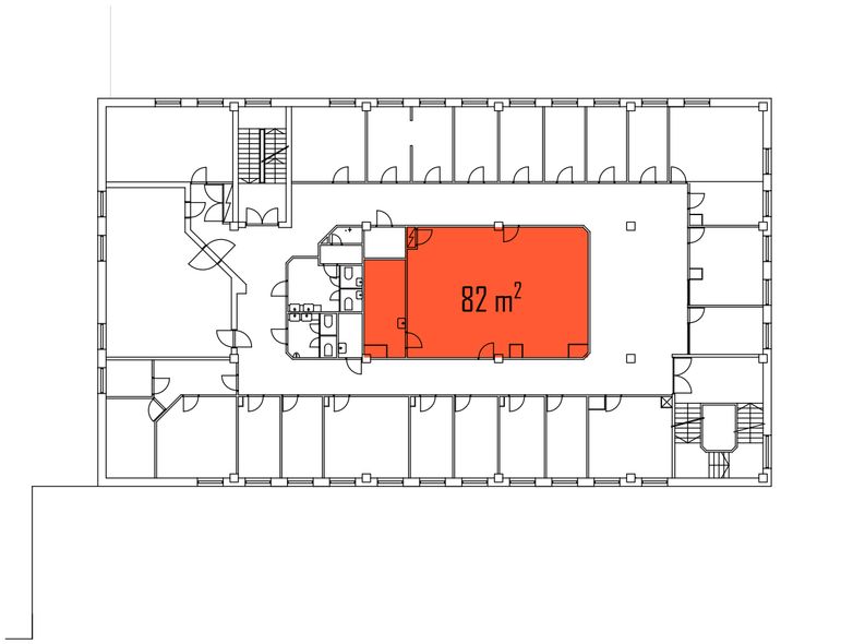
Vuokrattavana siistiä varastotilaa toisessa kerroksessa toimistotilojen yhteydessä.
Osoite
Valokaari 10, 00750 Helsinki
Tilatyyppi
Varastotilaa
82 m2
Kiinteistö
Vuokrattavana siistiä varastotilaa toisessa kerroksessa toimistotilojen yhteydessä. Tila sopii vaikka arkistoksi tai pienen kappaletavaran varastoksi.
Sijainti
Suutarila, Helsinki
Pysäköinti
Kiinteistön pihalla
Palvelut
Alueella on hyvät palvelut.
Kulkuyhteydet
-Bussi
-Oma auto
-Oma auto
Vapautuu
Heti
Kerros
2
Energiatehokkuusluokka
Ei lain edellyttämää energiatodistusta
Näkyvällä paikalla
Hissi
Ota yhteyttä
REALIUM OY LKV
Tammasaarenkatu 1, 00180 Helsinki
Vaihde:
Näytä puhelinnumero
010 326 346
Tuomo Mäkelä
tuomo.makela@realium.fi
p.
Näytä puhelinnumero
044 050 1158
Joel Keto
joel.keto@realium.fi
p.
Näytä puhelinnumero
045 317 0330
KAIKKI TILAVAIHTOEHDOT KERRALLA!
SOITA - MEILAA JA TILAA NÄYTTÖ!
Ilmainen palvelu tilanhakijoille.
Kartoitamme parhaat tilavaihtoehdot.
Kaikki kohteet eivät ole netissä.
Pyydä lisätietoa
