Vuokrataan toimistotilat, liiketilat - Helsinki
Itäkatu 11, Itäkeskus, 00930 Helsinki #10742888
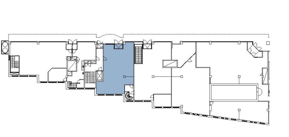
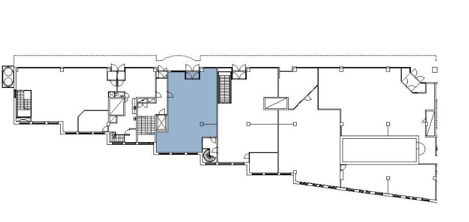
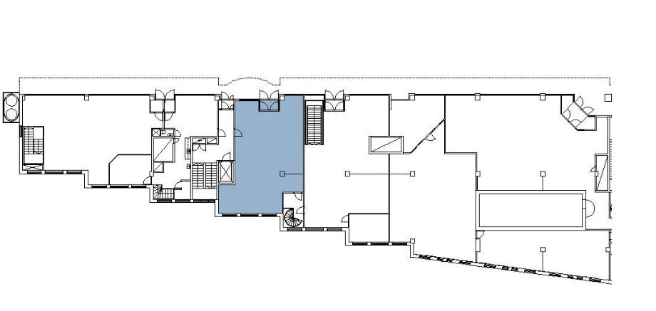
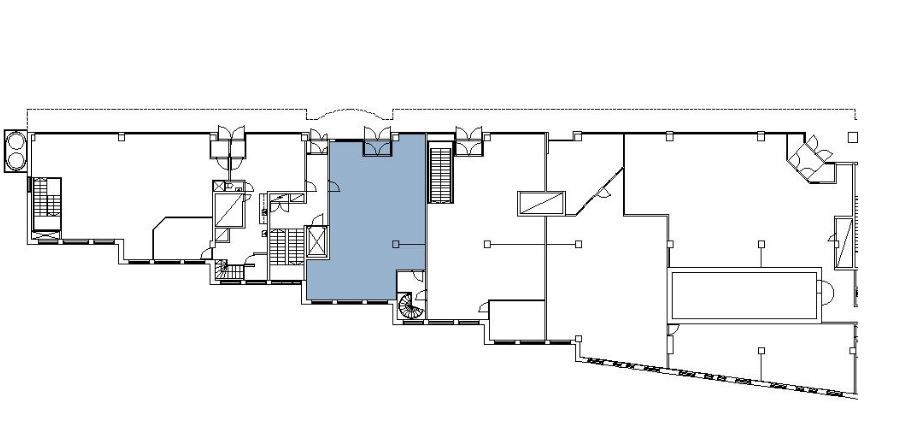
Vuokrattavana katutason liike-/toimistotila vilkkaalta asiakaspaikalta. Tila on kahdessa kerroksessa: katutaso 101m2 ja alakerta 64m2. Tila ei sovellu ravintolakäyttöön eikä elintarvikekaupaksi.
Katutasossa ikkunanäkymät ovat Tallinnanaukiolle ja alakerrassa ikkunanäkymät ovat Itäkadulle päin.
Itäkatu 11 on toimitilakiinteistö Itäkeskuksessa, aivan metroaseman ja kauppakeskuksen vieressä Tallinnanaukion laidalla. Kauppakeskus Itiksen palvelut sekä loistavat julkiset liikenneyhteydet metrolla ja bussilla helpottavat arjen toimintaa.
Lisätietoja numerosta 020 7290 710. Lisää kohteita osoitteessa www.premises.fi.
Kohteella ei ole lain edellyttämää energiatodistusta tai energialuokka ei tiedossa.Kerros: 1-K1
Helsingin keskustasta Itäkeskukseen aikaa menee metrolla 14 minuuttia, autolla noin 15 minuuttia. Itäkeskuksessa on tarjolla useita pysäköintialueita, mm. Itäkeskuksen metropysäköinnissä on 450 parkkipaikkaa.
CRE PREMISES
Puh. Näytä puhelinnumero 020 7290 710
Vantaankoskentie 14
01670 VANTAA
