Vuokrataan toimistotilat - Helsinki
Meritullinkatu 1, Kruununhaka, 00170 Helsinki #10742805
Modernia toimitilaa Helsingin Kruununhaassa.
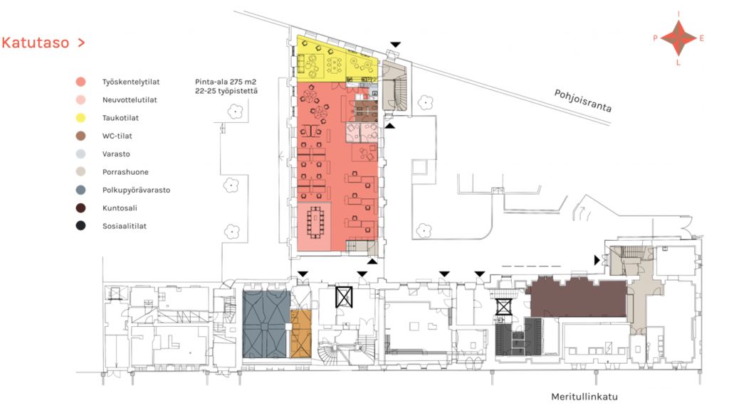
Tämä 275m2 toimistotila sijaitsee kiinteistön katutasossa. Tilaan mahtuu 22-25 työpistettä. Toimistossa on avonaisen työskentelytilan lisäksi neuvotteluhuoneita ja omat keittiö- ja wc-tilat.
Meritulli 1 sijaitsee Helsingin Kruununhaassa, aivan meren tuntumassa. Kiinteistö tarjoaa erinomaisen mahdollisuuden päästä suunnittelemaan yrityksesi toimitilat. Toteutuksessa käytetään laadukkaita materiaaleja ja tilat toteutetaan rakennuksen vanhaa henkeä kunnioittaen. Kiinteistön tilat ovat muunneltavia ja joustavat tilaratkaisut ovat mahdollisia. Talotekniikka on uusittu vastaamaan nykyaikaisia tarpeita. Sisäilmaan, valaistukseen ja akustiikkaan on kiinnitetty erityistä huomiota.
Meritulli 1 sijaitsee hyvällä paikalla, bussi- ja raitiovaunuyhteyksien välittömässä läheisyydessä. Keskustan kattava lounasravintolavalikoima, ruokakauppa ja monipuoliset palvelut ovat kävelyetäisyydellä. Kiinteistössä on viihtyisä Meri Lounge /kahvila, pyörien säilytystila pukuhuone- ja suihkutiloineen. Lisäksi kiinteistössä on vuokrattavia kokoustiloja ja sauna. Pohjakerroksessa on vuokralaisten käytössä oleva kuntosali.
Kysy lisää numerosta 044 723 4700 tai info@bref.fi. Palvelumme on tilanhakijoille ilmainen.
Bureau Real Estate Finland Oy
Lars Sonckin kaari 16, 02600 Espoo
Näytä puhelinnumero
0447234700
Bureau Real Estate Finland Oy
https://www.bref.fi