Vuokrataan toimistotilat - Espoo
Kutojantie 11, Kilo, 02630 Espoo #10742444
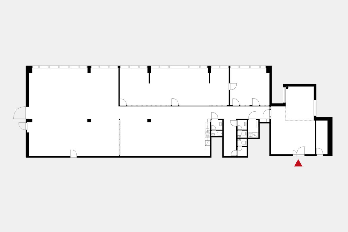
Vuokrattavana valoisa ja tilava toimistotila kiinteistön ylimmästä kerroksesta Espoon Kutojantieltä. Kerrokseen on tavarahissiyhteys.
Ylimmän kerroksen valoisassa neuvottelu- ja saunatilassa hoituvat kokoukset ja saunaillat.
Kilon alue on vilkas työpaikkakeskittymä hyvien liikenneyhteyksien varrella. Keran junaseisake ja bussipysäkit sijaitsevat kävelymatkan päässä kiinteistöstä. Ajoaika Helsinki-Vantaan lentoasemalle on alle puoli tuntia.
Kellarikerroksessa on kiinteistön käyttäjille vuokrattavissa pienvarastotilaa. Mahdollinen tavaraliikenne kerroksiin sujuu erillisellä tavarahissillä (kantavuus 1 000 kg).
Autopaikkoja on runsaasti; piha-alueella 64 kpl ja autokatoksessa 18 kpl. Lisäautopaikkoja löytyy viereiseltä tontilta.
Lisätiedot: 020 7290 710, sekä lisää kohteita osoitteesta: www.premises.fi
Energialuokka EKerros: 5
CRE PREMISES
Puh. Näytä puhelinnumero 020 7290 710
Vantaankoskentie 14
01670 VANTAA
