Vuokrataan - Tampere
Hallituskatu 7, 33200 Tampere #10741850
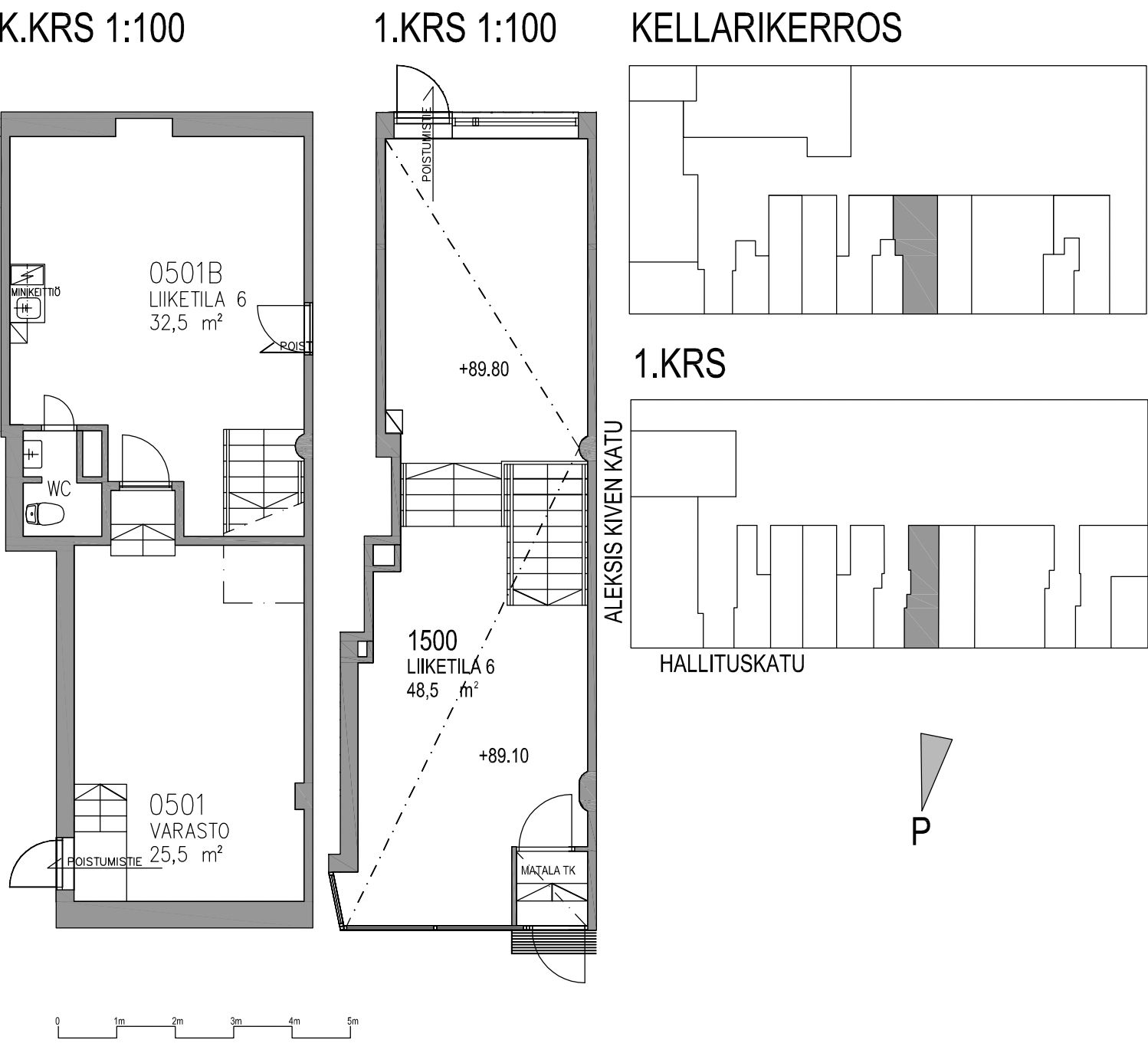
Siisti liiketila Tampereen keskustassa. Liiketila 106,5 m2 kahdessa tasossa(81m2 ja 25,5 m2). Tilassa on toiminut aiemmin kauneushoitola, joten mm.vesipisteitä löytyy valmiina.
Osoite
Hallituskatu 7, 33200 Tampere
Vuokra
1860.00 e/kk
Vapautuu
Kysy
Huoneiden lukumäärä
1
Energiatehokkuusluokka
Ei lain edellyttämää energiatodistusta
Ota yhteyttä
RHG Real Estate
Hämeenkatu 2 B20, 20500 Turku
Näytä puhelinnumero
020 734 4020
Mikko Wallgren
Työntekijä
Näytä puhelinnumero
045 6102 752
Pyydä lisätietoa
