Vuokrataan tuotantotilat - Orimattila
Kaitilantie 30, Jokela, 16300 Orimattila #10741758
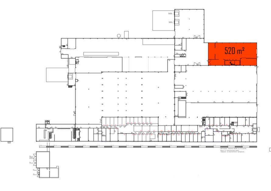
Varastoksi ja tuotantoon soveltuvaa tilaa Orimattilassa.
Tämä tila on kooltaan 520m2 ja sijaitsee kiinteistön katutasossa. Hallin korkeus on 5,6 metriä ja sinne johtaa 3,6 m leveä ja 4,17 m korkea nosto-ovi. Tilaan kuuluu erillinen n. 50m2:n kokoinen tila varastoksi tms. sekä pieni toimisto, keittiö ja wc. Tila on remontoitu vuonna 2019.
Kaitilan vaatetehtaana tunnettu kiinteistö sijaitsee Orimattilassa, tunnin ajomatkan päässä Helsingistä ja 15 minuutin ajomatkan päässä Lahdesta. Teollisuuskiinteistössä on tuotanto- ja varastotilaa, lastauslaituri ja sisäänajomahdollisuus. Kiinteistön kokonaispinta-ala on 10 000 m2. Rakennuksessa on sprinklerijärjestelmä ja piha-alue on asfaltoitu.
Kysy lisää numerosta 044 723 4700 tai info@bref.fi. Palvelumme on tilanhakijoille ilmainen.
Bureau Real Estate Finland Oy
Lars Sonckin kaari 16, 02600 Espoo
Näytä puhelinnumero
0447234700
Bureau Real Estate Finland Oy
https://www.bref.fi