Vuokrataan liiketilat - Kouvola
Torikatu 7, Keskusta, 45100 Kouvola #10741282
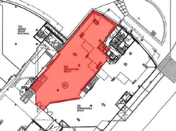
Hansan Keskuksesta pohjakerroksessa olevaa liiketilaa
Osoite
Torikatu 7, 45100 Kouvola
Tilatyyppi
Liiketilaa
546 m2
Kiinteistö
Kiinteistö sijaitsee Kouvolan keskustan keskeisellä paikalla.
Pysäköinti
Pihalla
Palvelut
Kouvolan keskutan palvelut vieressä
Vapautuu
08.03.2023
Kerros
1
Hissi
Ota yhteyttä
TopReal
Hietalahdenranta 17 B, 00180 Helsinki
Näytä puhelinnumero
09 6227 7852
Soita ja kysy lisää, tai tutustu www-sivuihimme!
http://www.topreal.fiPyydä lisätietoa
