Videoesittely
Vuokrataan toimistotilat, näyttelytilat, tuotantotilat, varastotilat, työtilat - Kerava
Kumitehtaankatu 5, 04260 Kerava #10741029
Klondyketalo on historiallinen punatiilinen tehdasrakennus ja maamerkki Keravalla
Osoite
Kumitehtaankatu 5, 04260 Kerava
Tilatyyppi
Toimistotilaa
20 - 2000 m2
Näyttelytilaa
20 - 2000 m2
Tuotantotilaa
20 - 2000 m2
Varastotilaa
20 - 2000 m2
Työtilaa
20 - 2000 m2
Yhteensä
20 - 2000 m2
Tilajako
Jaettavissa
Kiinteistö
Klondytaloon Loft-henkinen, monimuotoinen ja ainutlaatuinen kokonaisuus useine siipineen. Kooltaan kokonaisuus on 30 000 kerrosneliömetriä ja siellä toimii nykyään 70 eri alan yritystä.
Klondykesta löytyy erilaisia toimitiloja eri toimijoille ja toiminoille; toimisto- ja työtiloja, varastotiloja, ravintolatilaa, esiintymisareena, halleja ja urheilutiloja. Yritysten käytössä on neuvottelu-sekä kokoustilat ravintolan yhteydessä.
Rakennuksen sydämenä toimii pääsisäänkäynnin yhteydessä näyttävä areena katsomoineen ja viihtyisä kahvila-ja lounasravintola.
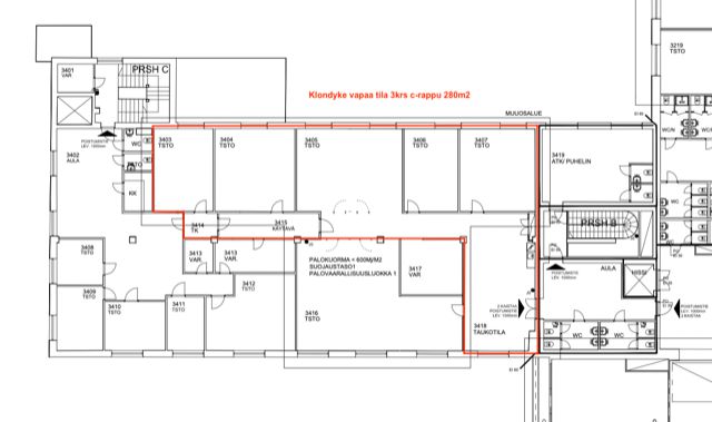
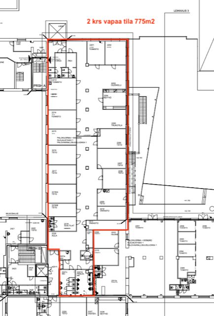
Vuokrattavissa työ-/toimistotilaa alk. 50 m2 - >
Tarjolla erisuuruisia kokonaisuuksia 1.-4. kerroksessa.
Klondykesta löytyy erilaisia toimitiloja eri toimijoille ja toiminoille; toimisto- ja työtiloja, varastotiloja, ravintolatilaa, esiintymisareena, halleja ja urheilutiloja. Yritysten käytössä on neuvottelu-sekä kokoustilat ravintolan yhteydessä.
Rakennuksen sydämenä toimii pääsisäänkäynnin yhteydessä näyttävä areena katsomoineen ja viihtyisä kahvila-ja lounasravintola.
Vuokrattavissa työ-/toimistotilaa alk. 50 m2 - >
Tarjolla erisuuruisia kokonaisuuksia 1.-4. kerroksessa.
Sijainti
Klondyke sijaitsee Keravalla hyvien liikenneyhteyksien varrella Savion rautatieaseman läheisyydessä.
Pysäköinti
Pihalla on 450 pysäköintipaikkaa.
Vapautuu
Heti
Jaettavissa
Liitetiedostot
Ota yhteyttä
Conorin
Toimitilojen vuokraus ja myynti
Näytä puhelinnumero
09 - 612 2230
Toimisto
Valimotie 17-19
Helsinki
Kaikki vapaat tilamme:
vapaat.toimitilat.fi/conorin
Pyydä lisätietoa
