Vuokrataan toimistotilat - Espoo
Klovinpellontie 1-3, Mankkaa, 02180 Espoo #10741012
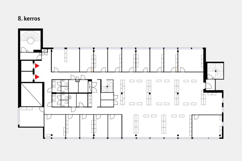
Vuokrataan 8. kerroksen avara toimistotila Turunväylän varresta Espoon Mankkaalta. Tämä toimistotila koostuu omasta keittiöstä, työ- ja neuvotteluhuoneista sekä avotilasta ja sosiaalitiloista. Tilaa voidaan tarvittaessa muokata vuokralaisen tarpeeseen sopivaksi. Hills Business Parkiin on helppo saapua autolla ja julkisilla välineillä, linja-autopysäkit ovat aivan vieressä. Hyvät julkiset yhteydet Espoon Mankkaalta, linja-autopysäkit aivan vieressä. Runsaasti parkkitilaa autoilijoille sekä pihalta että parkkihallista. Lisätietoja soita 020 730 4530 tai info@repoint.fi. Palvelumme on tilanhakijalle ilmainen.
Repoint Toimitilat Oy
Itälahdenkatu 22 B, 00210 Helsinki
Näytä puhelinnumero
020 730 4530
Lisätietoja soita Näytä puhelinnumero 020 730 4530 tai info@repoint.fi
https://repoint.fi/