Vuokrataan toimistotilat - Helsinki
Pohjoinen Rautatiekatu 25, Kamppi, 00100 Helsinki #10740999
Toimistotilaa Kampissa, lähellä monipuolisia palveluita.
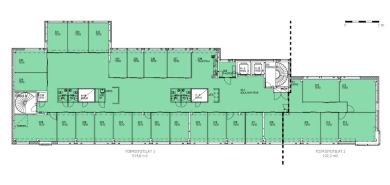
Kyseinen 638 m2 toimistotila sijaitsee kiinteistön 3. kerroksessa. Toimistossa on lasiseinäisiä huoneita, avotilaa sekä omat keittiö- ja wc-tilat.
Pohjoinen Rautatiekatu 25 on toimistokiinteistö Helsingin Kampissa. Se on remontoitu täysin vuosien 2016 ja 2017 aikana. Kiinteistön toimitilat ovat moderneja, laadukkaita ja helposti muunneltavissa vuokralaisen tarpeiden mukaan. Kiinteistön 1. kerroksessa on lisäksi neuvottelutiloja ja kellarista löytyy pyöräilijöille pyöräparkki ja pukuhuonetilat. Kellarikerroksessa on myös kuntosali.
Kysy lisää numerosta 044 723 4700 tai info@bref.fi. Palvelumme on tilanhakijoille ilmainen.
Bureau Real Estate Finland Oy
Lars Sonckin kaari 16, 02600 Espoo
Näytä puhelinnumero
0447234700
Bureau Real Estate Finland Oy
https://www.bref.fi