Vuokrataan liiketilat - Helsinki
Kotisaarenkatu 3, Arabia, 00550 Helsinki #10740906
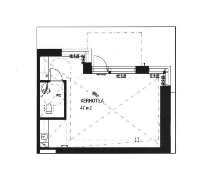
Vuokrattavana asuintalon kivijalasta valoisaa ja avaraa liike-/kerhotilaa.
Osoite
Kotisaarenkatu 3, 00550 Helsinki
Tilatyyppi
Liiketilaa
47 m2
Kiinteistö
Vuokrattavana asuintalon kivijalasta valoisaa ja avaraa liike-/kerhotilaa. Tilassa on avokeittiö. Tila on esteetön ja heti vapaa.
Sijainti
Arabianranta, Helsinki
Palvelut
Alueen palvelut.
Kulkuyhteydet
-Raitiovaunu
-Bussi
-Oma auto
-Bussi
-Oma auto
Vapautuu
Heti
Kerros
1
Energiatehokkuusluokka
Ei lain edellyttämää energiatodistusta
Katutasossa
Näkyvällä paikalla
Ota yhteyttä
REALIUM OY LKV
Tammasaarenkatu 1, 00180 Helsinki
Vaihde:
Näytä puhelinnumero
010 326 346
Tuomo Mäkelä
tuomo.makela@realium.fi
p.
Näytä puhelinnumero
044 050 1158
Joel Keto
joel.keto@realium.fi
p.
Näytä puhelinnumero
045 317 0330
KAIKKI TILAVAIHTOEHDOT KERRALLA!
SOITA - MEILAA JA TILAA NÄYTTÖ!
Ilmainen palvelu tilanhakijoille.
Kartoitamme parhaat tilavaihtoehdot.
Kaikki kohteet eivät ole netissä.
Pyydä lisätietoa
