Vuokrataan toimistotilat - Espoo
Niittyrinne 7, Yli-Finnoo, 02270 Espoo #10740886
Osoite
Niittyrinne 7, Yli-Finnoo, 02270 Espoo
Tilatyyppi
Toimistotilaa
740 m2
Kiinteistö
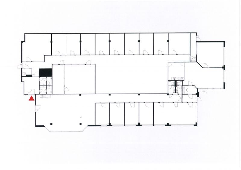
Vuokrataan läheltä Länsiväylää toimistotilaa 740 m² kiinteistön 3. kerroksesta Jäähdytetyt tilat voidaan muokata tulevan vuokralaisen tarpeiden mukaan.
Tila voidaan myös jakaa kahdelle käyttäjälle.
Tila voidaan myös jakaa kahdelle käyttäjälle.
Pysäköinti
Mahdollisuus vuokrata autopaikkoja.
Vapautuu
Heti
Energiatehokkuusluokka
Ei lain edellyttämää energiatodistusta
Ota yhteyttä
Comreal Oy LKV
Tuula Leikas
Näytä puhelinnumero
040 531 3722
P.
Näytä puhelinnumero
020 744 1000
Läkkisepänkuja 6, 00620 Helsinki
Comreal Oy on kasvava ja osaava kiinteistöalan palveluntuottaja kiinteistöjen omistajille ja käyttäjille.
Kiinteistö on sijoittajalle hyvä sijoitus vain, jos siellä on tyytyväiset asiakkaat, eli vuokralaiset. Siksi laadukas asiakaspalvelu on toiminnan lähtökohta.
Pyydä lisätietoa
