Vuokrataan - Helsinki
Hitsaajankatu 4, Herttoniemi, 00810 Helsinki #10740170
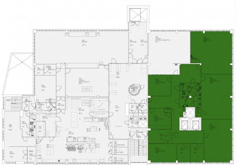
Vuokrataan 324m2 toimitila, joka soveltuu hyvin esimerkiksi koulutustilaksi. Tilassa on neljä luokkatilaa ja muutama toimistohuone. Yhdistettävissä viereisen keittiötilan kanssa. Kiinteistö sijaitsee Herttoniemen metroaseman läheisyydessä.
Kysy lisää Jouko Raitanen Helsinki puh. 0504695444
Kysy lisää Jouko Raitanen Helsinki puh. 0504695444
Osoite
Hitsaajankatu 4, 00810 Helsinki
Vapautuu
Kysy
Huoneiden lukumäärä
1
Energiatehokkuusluokka
Ei lain edellyttämää energiatodistusta
Ota yhteyttä
RHG Real Estate
Hämeenkatu 2 B20, 20500 Turku
Näytä puhelinnumero
020 734 4020
Jouko Raitanen
Näytä puhelinnumero
050 469 5444
Pyydä lisätietoa
