Vuokrataan - Helsinki
Panimokatu 4, Kalasatama, 00580 Helsinki #10740165
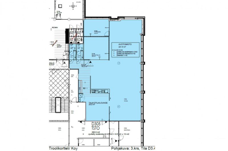
Hiljattain remontoitu, tehokas toimistotila 221,5 m² (+ aulajyvitys 11 m²). Tämän toimiston valoisaan avotilaan mahtuu 18 työpistettä, lisäksi tilassa on neuvotteluhuone 9 hengelle ja hiljainen huone, johon sopii 2 työpistettä. Keittiö + loungetila sijaitsevat omassa kulmassaan. Ikkunat itään kadulle ja länteen sisäpihalle. Tilassa on datakaapelointi.
Kysy lisää Jouko Raitanen Helsinki puh. 0504695444
Osoite
Panimokatu 4, 00580 Helsinki
Vapautuu
Kysy
Huoneiden lukumäärä
1
Ota yhteyttä
RHG Real Estate
Hämeenkatu 2 B20, 20500 Turku
Näytä puhelinnumero
020 734 4020
Jouko Raitanen
Näytä puhelinnumero
050 469 5444
Pyydä lisätietoa
