Vuokrataan toimistotilat - Helsinki
Orapihlajatie 41, Haaga, 00320 Helsinki #10740131
Siistiä jäähdytettyä toimistotilaa Haagassa
Osoite
Orapihlajatie 41, 00320 Helsinki
Tilatyyppi
Toimistotilaa
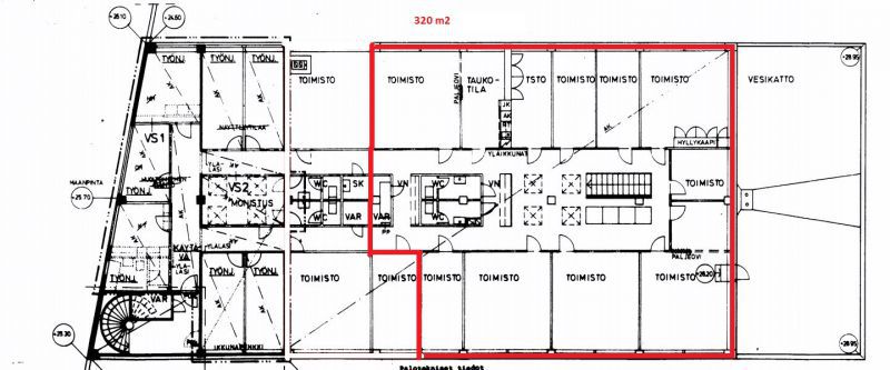
14 - 320 m2
Tilajako
Jaettavissa
Huoneittain
Pohjapiirros
Vuokra
Kysy
Vuokraan sisältyy sähkö, vesi, lämpö
Pysäköinti
Pihalla ja kadulla
Muuta
Hyväkuntoista jäähdytettyä toimistotilaa yhteensä 320 m2.
Voidaan jakaa huoneittain.
14 m2 = 330 eur/ kk
16 m2 = 390 e/kk
41 m2 mahdollisuus tehdä ulkoterassi 880 e/kk
32 m2 680/kk
30 m2 660/kk
Vuokrat sisältävät yhteiskäyttöisen aulan, keittiön, wc:t.
Normaali toimistosähkö sisältyy vuokraan. Jos normaalia suurempi sähkönkulutus, laskutetaan kulutuksen mukaan.
Arvonlisäveroa ei lisätä vuokraan.
Toinen krs, jäähdytys ilmalämpöpumpuilla, laminaattilattia, Cat6-kaapelointi, taloon tulee valokaapeli. Aula, 9 huonetta, 2 x wc, keittiö. Käynti kiinteistön pääsisäänkäynnin kautta kadun puolelta.
Loistavat liikenneyhteydet, Huopalahden asema kävelymatkan päässä, samoin bussilinjat. Pihalta mahdollista vuokrata autopaikkoja. Hiljainen katu, jonka varrella hyvin parkkitilaa (4 tunnin rajoitus).
Lisätiedot: tapio@realsale.fi tai p. 040 55 88 226.
Voidaan jakaa huoneittain.
14 m2 = 330 eur/ kk
16 m2 = 390 e/kk
41 m2 mahdollisuus tehdä ulkoterassi 880 e/kk
32 m2 680/kk
30 m2 660/kk
Vuokrat sisältävät yhteiskäyttöisen aulan, keittiön, wc:t.
Normaali toimistosähkö sisältyy vuokraan. Jos normaalia suurempi sähkönkulutus, laskutetaan kulutuksen mukaan.
Arvonlisäveroa ei lisätä vuokraan.
Toinen krs, jäähdytys ilmalämpöpumpuilla, laminaattilattia, Cat6-kaapelointi, taloon tulee valokaapeli. Aula, 9 huonetta, 2 x wc, keittiö. Käynti kiinteistön pääsisäänkäynnin kautta kadun puolelta.
Loistavat liikenneyhteydet, Huopalahden asema kävelymatkan päässä, samoin bussilinjat. Pihalta mahdollista vuokrata autopaikkoja. Hiljainen katu, jonka varrella hyvin parkkitilaa (4 tunnin rajoitus).
Lisätiedot: tapio@realsale.fi tai p. 040 55 88 226.
Vapautuu
Heti
Energiatehokkuusluokka
H (ei luokitusta)
Jaettavissa
Ota yhteyttä
Pyydä lisätietoa
