Vuokrataan toimistotilat - Espoo
Kutojantie 11, Kilo, 02630 Espoo #10739719
Vuokrattavana toimistotilaa Espoon Kilossa.
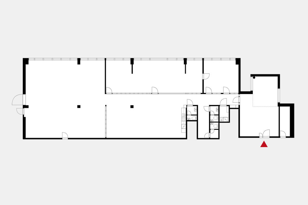
Tämä 343m2 toimisto sijaitsee kiinteistön 5. kerroksessa. Se koostuu avotilasta ja muutamasta huoneesta. Tilaan kuuluu omat keittiö ja wc-tilat.
Kutojantie 11 on viisikerroksinen toimistorakennus, joka sijaitsee Kilossa, Kehä II:n ja Turunväylän vieressä. Kohteesta löydät joustavaa toimistotilaa helposti muuunneltavilla seinäratkaisuilla. Toimistotiloissa on työpistekohtainen lämmitys ja jäähdytys sekä CAT-5 tason tietoliikenneverkko.
Kysy lisää numerosta 044 723 4700 tai info@bref.fi. Palvelumme on tilanhakijoille ilmainen.
Bureau Real Estate Finland Oy
Lars Sonckin kaari 16, 02600 Espoo
Näytä puhelinnumero
0447234700
Bureau Real Estate Finland Oy
https://www.bref.fi