Vuokrataan toimistotilat - Helsinki
Lemuntie 9, Vallila, 00510 Helsinki #10739516
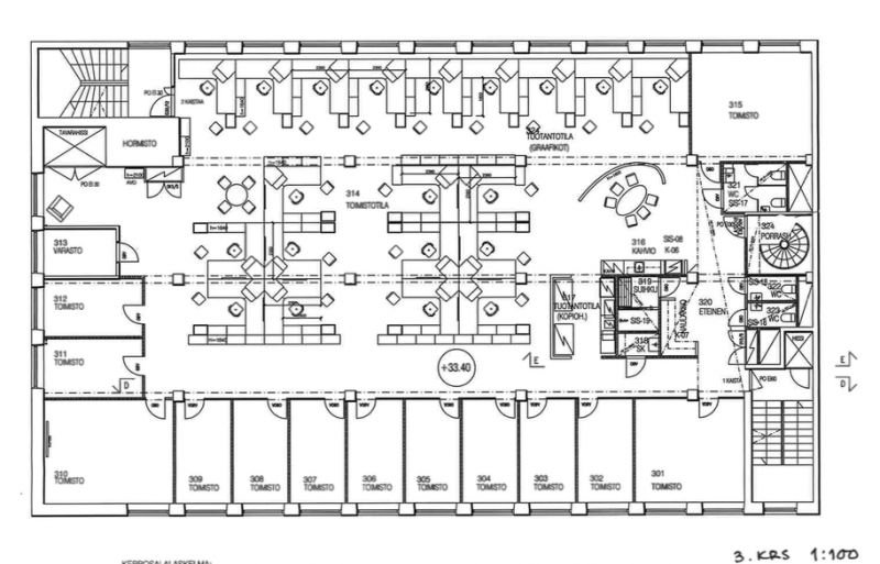
Vuokrataan 3. kerroksen toimistotila. Valoisan ja tyylikkään tilan huonekorkeus on 3 metriä. Tilassa avotoimistoa ja 13 työhuonetta, keittiö, 3 wc:tä ja suihku. Tilaan on tavarahissiyhteys kiinteistön lastauslaiturilta. Kohteessa edullinen vuokrataso.Lemuntie 9 on vanha teollisuusrakennus, joka on muutettu tyylikkäiksi toimistoiksi vanhaa kunnioittaen. Lisätietoja soita 020 730 4530 tai info@repoint.fi. Palvelumme on tilanhakijalle ilmainen.
Osoite
Lemuntie 9, 00510 Helsinki
Tilatyyppi
Toimistotilaa
575 m2
Vapautuu
Kysy
Kerros
3
Ota yhteyttä
Repoint Toimitilat Oy
Itälahdenkatu 22 B, 00210 Helsinki
Näytä puhelinnumero
020 730 4530
Lisätietoja soita Näytä puhelinnumero 020 730 4530 tai info@repoint.fi
https://repoint.fi/Pyydä lisätietoa
