Vuokrataan - Helsinki
Takkatie 7, Pitäjänmäki, Helsinki #10739481
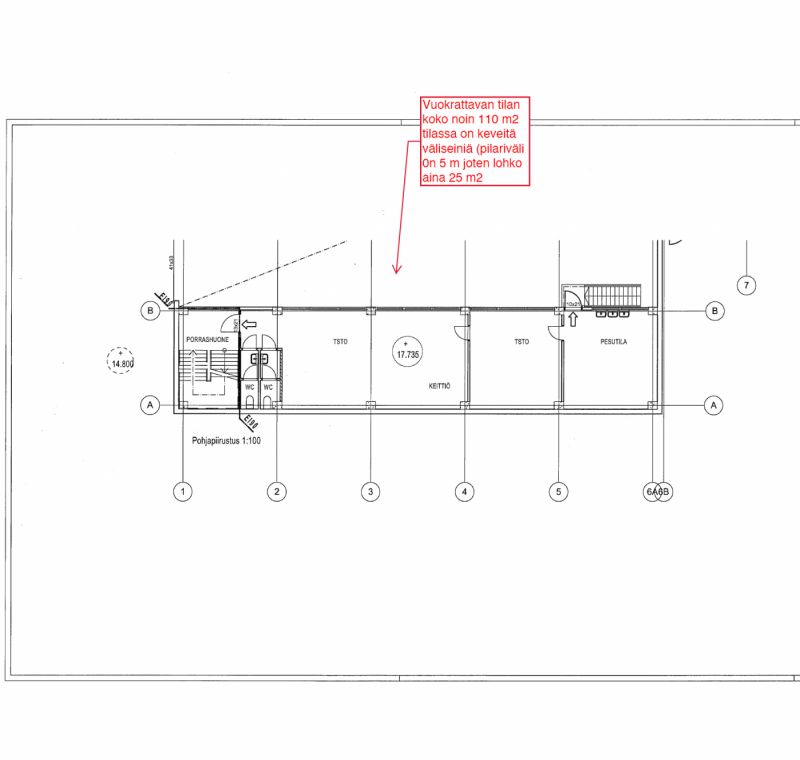
Pitäjänmäki toimisto 2. krs 115 m2 vapautunut. Talossa laajakaista. Yksi parkkipaikka pihalta.
Osoite
Takkatie 7, Helsinki
Vuokra
828.00 e/kk
Vapautuu
Kysy
Huoneiden lukumäärä
1
Energiatehokkuusluokka
Ei lain edellyttämää energiatodistusta
Ota yhteyttä
RHG Real Estate
Hämeenkatu 2 B20, 20500 Turku
Näytä puhelinnumero
020 734 4020
Risto Taimela
Näytä puhelinnumero
0400 674 900
Pyydä lisätietoa
