Vuokrataan liiketilat - Helsinki
Siltasaarenkatu 7, Hakaniemi, 00530 Helsinki #10739474
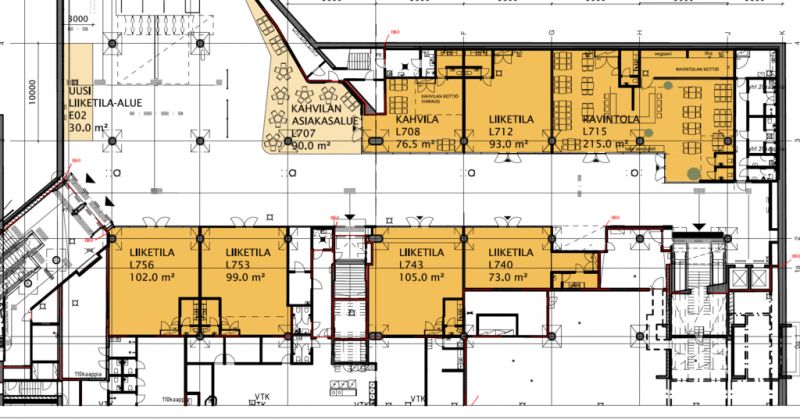
Vuokrattavana liiketilaa Helsingin Hakaniemessä.
Tämä 99 m2 liiketila sijaitsee Hakaniemen metroasemalla. Tila on näkyvällä paikalla ja siihen kuuluu oma siisti keittiö ja wc-tilat. Ei sovellu ravintola-, kahvila- tai kampaamotoimintaan. This premise is not suitable for a restaurant, cafeteria or a barber shop.
Siltasaarenkatu 7 eli Hakaniemen metroasema tarjoaa yrityksille vilkkaan asiakasvirran. Kohteesta on hyvät liikenneyhteydet keskustaan metrolla ja raitiovaunulla. Kaikki Hakaniemen palvelut kävelymatkan päässä.
Kysy lisää numerosta 044 723 4700 tai info@bref.fi. Palvelumme on tilanhakijoille ilmainen.
Hissi
Bureau Real Estate Finland Oy
Lars Sonckin kaari 16, 02600 Espoo
Näytä puhelinnumero
0447234700
Bureau Real Estate Finland Oy
https://www.bref.fi