Vuokrataan toimistotilat - Helsinki
Snellmaninkatu 13, Kruununhaka, 00170 Helsinki #10739248
Toimitilaa arvokiinteistössä Helsingin Kruununhaan sydämessä.
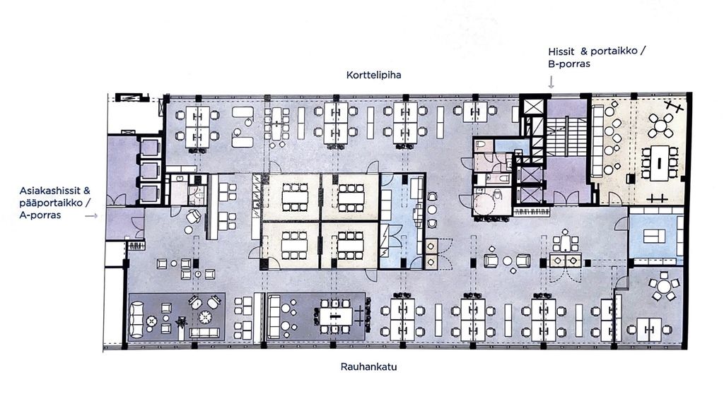
Tämä noin 590 m² tila sijaitsee kiinteistön 5. kerroksessa. Tilaan on kaksi erillistä sisäänkäyntiä, joiden yhteydessä sijaitsevat hissit. Toimistosta avautuvat rauhalliset puistonäkymät Rauhankadun suuntaan, sekä upeat näkymät Helsingin historialliseen sydämeen Säätytalolle ja Suomen Pankkiin. Tila on raakapinnoilla ja se remontoidaan uudelle vuokralaiselle. Kuvat ovat esimerkkikuvia jo remontoiduista toimistotiloista, sekä havainnekuvia kiinteistön yleisistä tiloista. Pohjakuva on esimerkki mahdollisesta tilasovituksesta.
Snellmaninkatu 13 on arvokiinteistö Helsingin Kruunuhaassa. Kiinteistössä on edustava sisäänkäynti, kattavat aulapalvelut ja laadukkaat sekä muuntojoustavat tilat. Kiinteistössä on vuokrattavana myös varastotiloja. Kiinteistön sijainti takaa erinomaisen saavutettavuuden sekä julkisilla kulkuvälineillä että autolla. Keskustan monipuoliset palvelut sijaitsevat vain lyhyen kävelyetäisyyden päässä.
Kysy lisää numerosta 044 723 4700 tai info@bref.fi. Palvelumme on tilanhakijoille ilmainen.
Bureau Real Estate Finland Oy
Lars Sonckin kaari 16, 02600 Espoo
Näytä puhelinnumero
0447234700
Bureau Real Estate Finland Oy
https://www.bref.fi