Vuokrataan toimistotilat - Helsinki
Itämerenkatu 1, Ruoholahti, 00180 Helsinki #10739011
Merellinen työpaikka keskustan läheisyydessä
Osoite
Itämerenkatu 1, 00180 Helsinki
Tilatyyppi
Toimistotilaa
355 m2
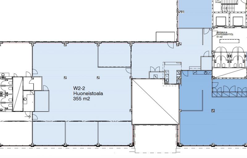
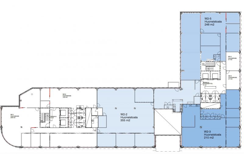
Pohjapiirros
Kiinteistö
Keskeisellä paikalla Ruoholahdessa sijaitseva Kiinteistö Oy Westport on nykyaikaisella tekniikalla varustettu vuonna 1998 valmistunut rakennus. Kiinteistön tehokkaat toimistotilat soveltuvat niin avotoimistoksi kuin myös huonetoimistoksi vuokralaisen toivomusten mukaisesti.
Ilmoituksen kuvat ovat yleskuvia kiinteistön eri tiloista.
Kohteessa on oma lounasravintola ja neuvottelukeskus, jossa on erikokoisia neuvotteluhuoneita tarpeen mukaan. Kaikki neuvotteluhuoneet on varustettu nykyaikaisella tekniikalla. Yläkerrassa on sauna- ja kokoustilat yritysten omien tilaisuuksien järjestämistä varten.
Westport tarjoaa hyvän sijainnin käyttäjälle, joka liikkuu julkisilla liikennevälineillä tai omalla autolla.
- Jäähdytetty ilmanvaihto
- Aulapalvelut
- Edustustilat
- Lounasravintola
- Sauna
- Vuokrattavia neuvottelutiloja
Ilmoituksen kuvat ovat yleskuvia kiinteistön eri tiloista.
Kohteessa on oma lounasravintola ja neuvottelukeskus, jossa on erikokoisia neuvotteluhuoneita tarpeen mukaan. Kaikki neuvotteluhuoneet on varustettu nykyaikaisella tekniikalla. Yläkerrassa on sauna- ja kokoustilat yritysten omien tilaisuuksien järjestämistä varten.
Westport tarjoaa hyvän sijainnin käyttäjälle, joka liikkuu julkisilla liikennevälineillä tai omalla autolla.
- Jäähdytetty ilmanvaihto
- Aulapalvelut
- Edustustilat
- Lounasravintola
- Sauna
- Vuokrattavia neuvottelutiloja
Vapautuu
Heti
Rakennusvuosi
1998
Kerros
2 / 9
Energiatehokkuusluokka
Ei lain edellyttämää energiatodistusta
Näkyvällä paikalla
Hissi
Ota yhteyttä
ScanReal Oy LKV
Opus Business Park
Hitsaajankatu 24
00810 Helsinki
info@scanreal.fi
Puh:
Näytä puhelinnumero
020 730 8830
Sopivat toimitilat yhdellä otolla!
Kartoitamme toimitilatarpeesi ja etsimme yrityksellesi parhaiten sopivat vapaat toimitilat. Koska vuokranantajat maksavat palvelumme, on tämä yrityksellesi veloituksetonta.
OTA YHTEYTTÄ - SOVI NÄYTTÖ!
Kaikki kohteemme eivät ole netissä, kerro tilatarpeesi niin kartoitamme vaihtoehdot.
Palvelumme on tilanhakijalle ilmainen
Pyydä lisätietoa
