Vuokrataan toimistotilat, liiketilat - Espoo
Muurarinkuja 1, Leppävaara, 02650 Espoo #10738601
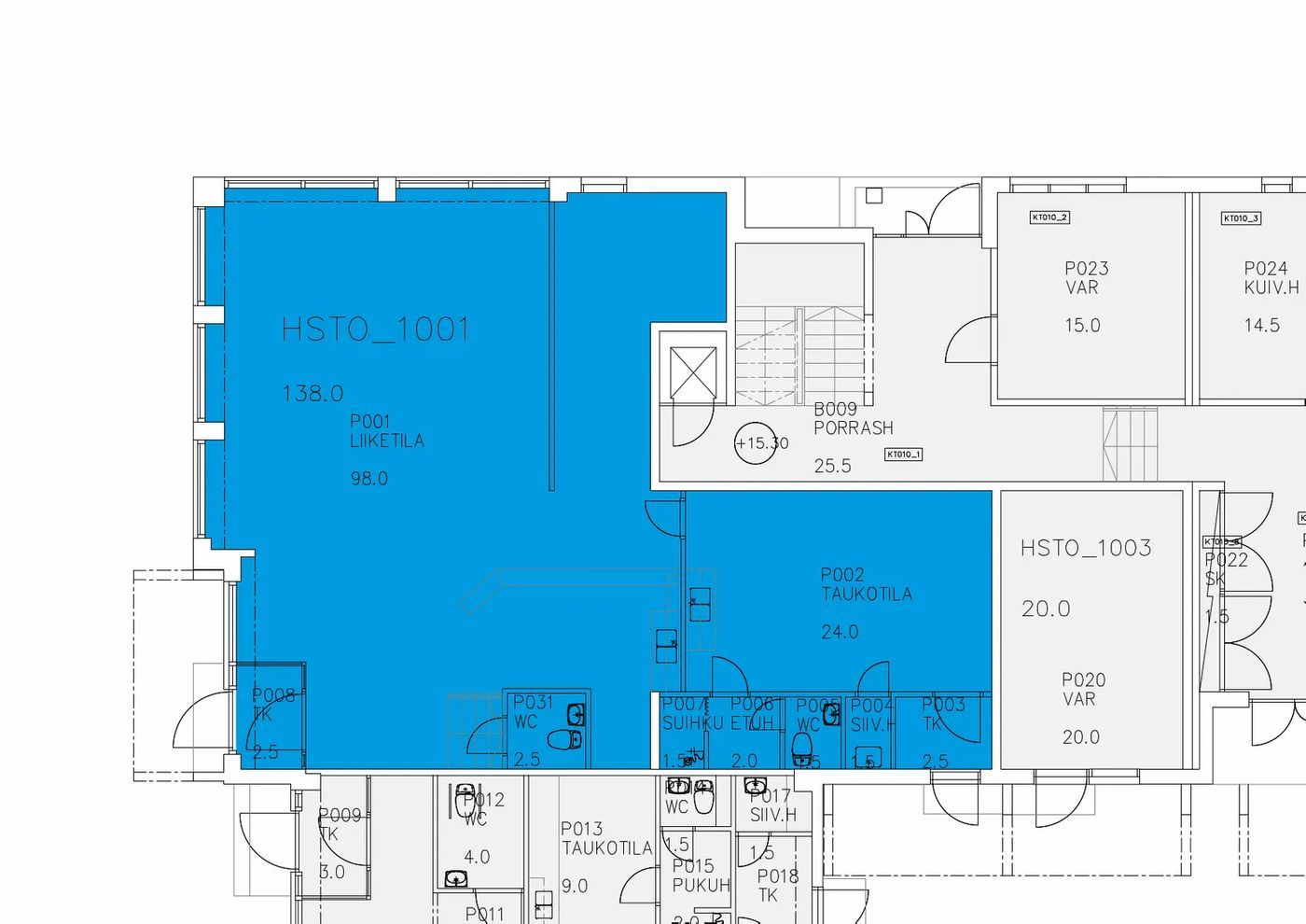
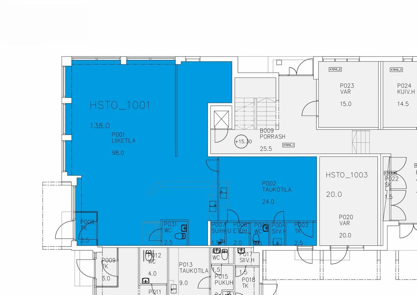
Vuokrattavana Espoon Leppävaarassa katutason liiketila. Tilassa on oma sisäänkäynti ja suuret ikkunat. Tila soveltuu hyvin kampaamoksi, ja voidaan käyttää myös toimistona. Ei sovellu kahvila- tai ravintolatoimintaan.
Lisätietoja numerosta 020 7290 710, lisää kohteita www.premises.fi
Kohteella ei ole lain edellyttämää energiatodistusta tai energialuokka ei tiedossa.Kerros: katu
Osoite
Muurarinkuja 1, 02650 Espoo
Tilatyyppi
Toimistotilaa
138 m2
Liiketilaa
138 m2
Yhteensä
138 m2
Ota yhteyttä
CRE PREMISES
Puh. Näytä puhelinnumero 020 7290 710
Vantaankoskentie 14
01670 VANTAA
Pyydä lisätietoa
