Vuokrataan toimistotilat - Espoo
Muurarinkuja 1, Leppävaara, 02650 Espoo #10738588
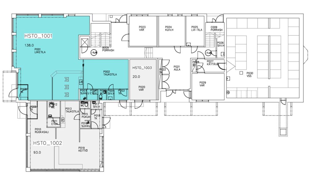
Toimisto-/liiketilaa Espoon Leppävaarassa.
Tämä 138m2 toimitila sijaitsee kiinteistön katutasossa. Tila soveltuu sekä toimistoksi että liiketilaksi. Tilassa on isot ikkunat, ja siihen on oma sisäänkäynti. Toimitila on pääosin avonainen, ja siihen kuuluvat omat keittiö- ja wc-tilat. Lisäksi tilassa on oma suihku. Ei sovellu kahvila-, ravintola- tai parturikampaamotoimintaan. This premise is not suitable for a restaurant, cafeteria or a barber shop. Tila on arvonlisäveroton.
Muurarinkuja 1 B sijaitsee hyvällä paikalla Espoon Leppävaarassa. Alueelle on erinomaiset julkisen liikenteen yhteydet. Kiinteistö on hyvin saavutettavissa myös omalla autolla. Lyhyt matka Kehä I:lle ja Turunväylälle. Lähellä on useita lounasravintoloita ja päivittäistavarakauppoja. Kauppakeskus Selloon on lyhyt matka.
Kysy lisää numerosta 044 723 4700 tai info@bref.fi. Palvelumme on tilanhakijoille ilmainen.
Bureau Real Estate Finland Oy
Lars Sonckin kaari 16, 02600 Espoo
Näytä puhelinnumero
0447234700
Bureau Real Estate Finland Oy
https://www.bref.fi