Vuokrataan toimistotilat - Espoo
Säterinkatu 6, Leppävaara, 02600 Espoo #10737873
Modernia ja valoisaa toimistotilaa hyvällä sijainnilla Espoon Leppävaarassa Sellon kauppakeskuksen läheisyydestä.
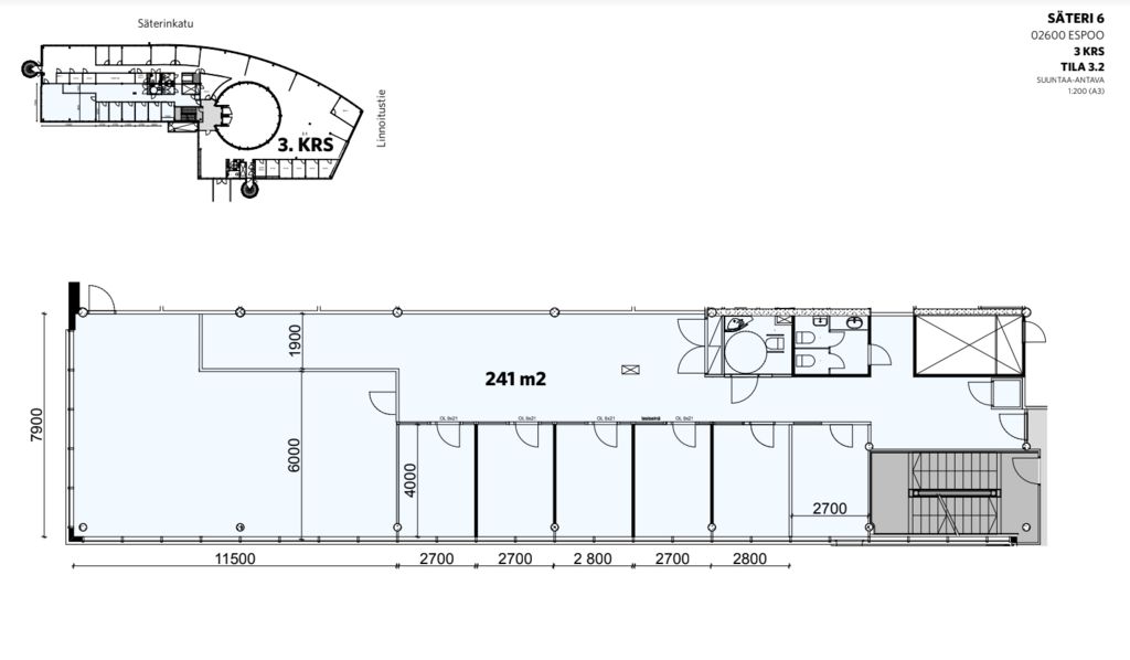
Tämä 241m2 tila sijaitsee kiinteistön 3.kerroksessa. Tila koostuu avotilasta, mutta sitä voidaan muokata vuokralaisen tarpeiden mukaan.
Säteri Business Park koostuu kahdesta toimistotalosta; Linnoituksesta ja Säteristä sekä maanalaisesta parkkihallikerroksesta. Kiinteistössä on tarjolla mm. aulapalvelu, ravintola, parturikampaamo sekä kuntosali saunatiloineen. Ylimmässä kerroksessa on myös viihtyisä terassialue sekä tapahtuma- ja kokoustila. Kiinteistöllä on hyvä sijainti Raide-Jokerin varrella, kävelyetäisyydellä kauppakeskus Sellosta.
Kysy lisää numerosta 044 723 4700 tai info@bref.fi. Palvelumme on tilanhakijoille ilmainen.
Rakennuksesta löytyy oma kuntosali sekä suihku- ja pukuhuonetilat. Ylimmäisessä kerroksessa on myös oma saunatila hienoine pukutiloineen ja sen kattoterassilla voi vilvoitella sekä nauttia maisemista.
Hissi
Bureau Real Estate Finland Oy
Lars Sonckin kaari 16, 02600 Espoo
Näytä puhelinnumero
0447234700
Bureau Real Estate Finland Oy
https://www.bref.fi