Vuokrataan toimistotilat - Helsinki
Lampputie 1, Suutarila, 00740 Helsinki #10737687
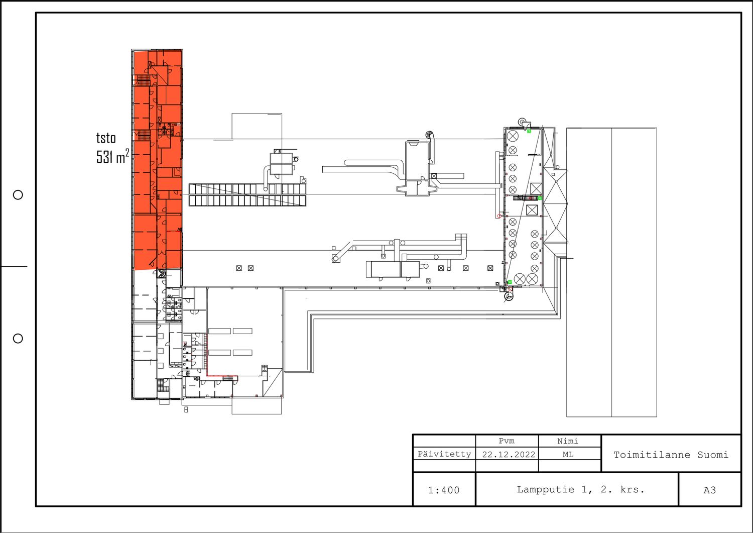
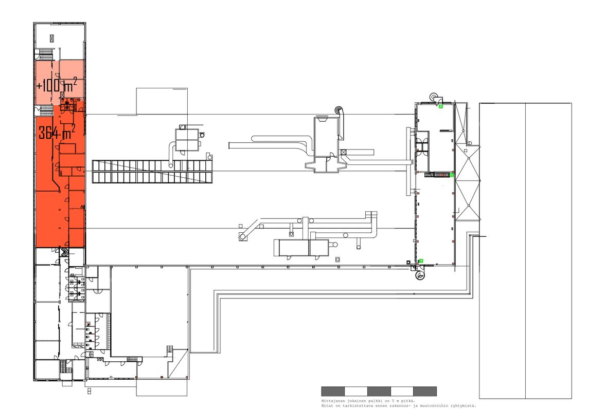
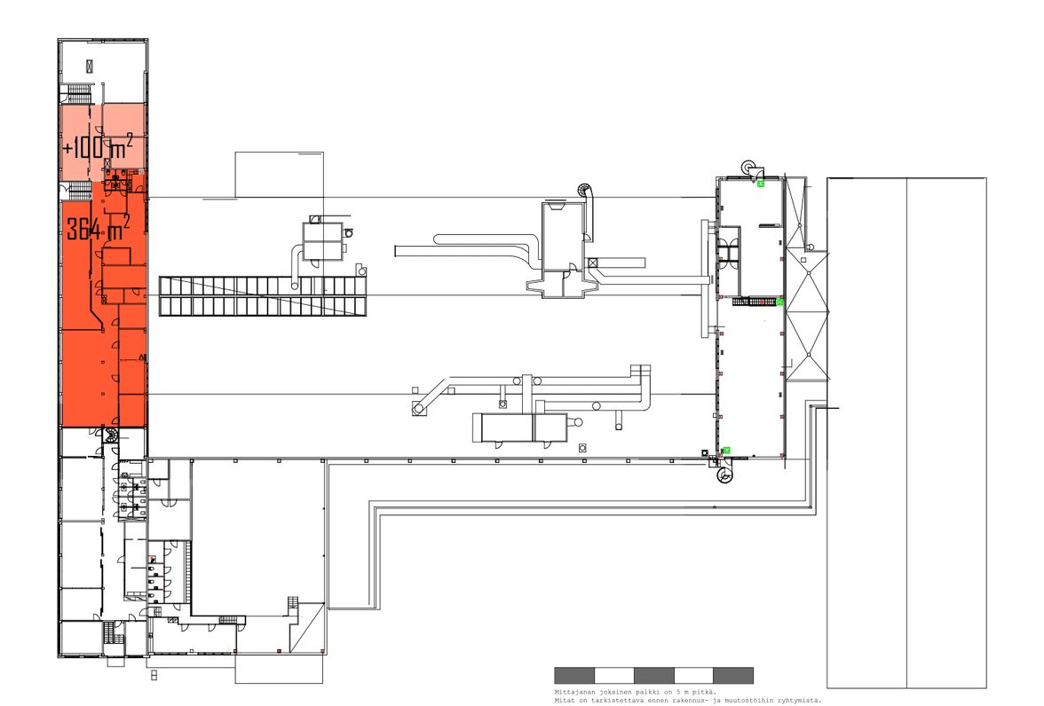
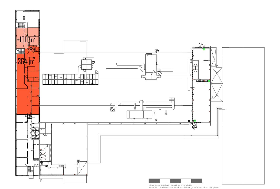
Modernia toimistotilaa rakennuksen toisessa kerroksessa. Alunperin 826 m2:n kokoisesta tilasta voi vuokrata 364 m2 tai 464 m2. Kellarikerroksesta voi vuokrata lisäksi erillisen saunallisen pukuhuonetilan.
Kiinteistössä erillinen lähettämö lastauslaiturilla. Tuotanto- ja varastotilat sijaitsevat maan tasossa ja kiinteistössä on runsaasti suuria nosto-ovia. Tiloissa on myös pesuhalli. Runsaat piha-alueet niin varastointiin kuin pysäköintiinkin. Kiinteistössä toimii lounasravintola Calabria ja sauna- ja pukuhuonetilojakin on tarjolla.
Kohteella on erinomainen saavutettavuus teiltä 3 ja 4, Kehä III -rampille noin 500 m.
Lisätiedot 020 7290710, lisää kohteita osoitteesta www.premises.fi
Kohteella ei ole lain edellyttämää energiatodistusta.Kerros: 2
CRE PREMISES
Puh. Näytä puhelinnumero 020 7290 710
Vantaankoskentie 14
01670 VANTAA
