Vuokrataan varastotilat - Helsinki
Sorvaajankatu 13, Herttoniemi, 00880 Helsinki #10737579
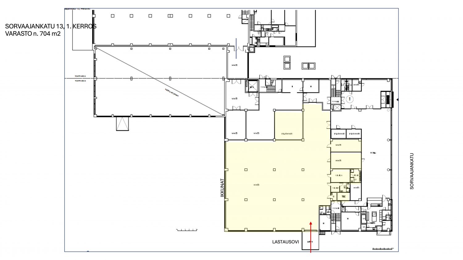
Avara ja muuntojoustava 704 m² varastotila Herttoniemen teollisuusalueella.
Osoite
Sorvaajankatu 13, 00880 Helsinki
Tilatyyppi
Varastotilaa
704 m2
Pohjapiirros
Kiinteistö
Sorvaajankatu 13 tarjoaa logistiikka- ja toimistotilaa huippusijainnilta kohtuullisin kustannuksin.
Maantaso- /pieni lastaslaituriyhteys.
Herttoniemen halutulla ja jatkuvasti kehittyvällä yritysalueella sijaitsevaan logistiikkakiinteistöön pääsee nopeasti niin metrolla kuin Itäväylältä.
Yhdessä naapurikiinteistö Sorvaajankatu 15:n kanssa vuokrapinta-alaa on liki 14 000 m² ja erikokoiset tilat palvelevat monenlaisia yrityksiä.
Omistaja on sitoutunut räätälöimään tilat vuokralaisten tarpeiden mukaan.
Maantaso- /pieni lastaslaituriyhteys.
Herttoniemen halutulla ja jatkuvasti kehittyvällä yritysalueella sijaitsevaan logistiikkakiinteistöön pääsee nopeasti niin metrolla kuin Itäväylältä.
Yhdessä naapurikiinteistö Sorvaajankatu 15:n kanssa vuokrapinta-alaa on liki 14 000 m² ja erikokoiset tilat palvelevat monenlaisia yrityksiä.
Omistaja on sitoutunut räätälöimään tilat vuokralaisten tarpeiden mukaan.
Sijainti
Herttoniemi. Hyvien liikenneyhteyksien varrella, Kehä I:n ja Itäväylän kupeessa.
Kulkuyhteydet
Bussi, metro
Vapautuu
Heti
Kerros
2
Energiatehokkuusluokka
Ei lain edellyttämää energiatodistusta
Hissi
Ota yhteyttä
ScanReal Oy LKV
Opus Business Park
Hitsaajankatu 24
00810 Helsinki
info@scanreal.fi
Puh:
Näytä puhelinnumero
020 730 8830
Sopivat toimitilat yhdellä otolla!
Kartoitamme toimitilatarpeesi ja etsimme yrityksellesi parhaiten sopivat vapaat toimitilat. Koska vuokranantajat maksavat palvelumme, on tämä yrityksellesi veloituksetonta.
OTA YHTEYTTÄ - SOVI NÄYTTÖ!
Kaikki kohteemme eivät ole netissä, kerro tilatarpeesi niin kartoitamme vaihtoehdot.
Palvelumme on tilanhakijalle ilmainen
Pyydä lisätietoa
