Vuokrataan liiketilat - Oulu
Isokatu 33, Keskusta, 90100 Oulu #10737538
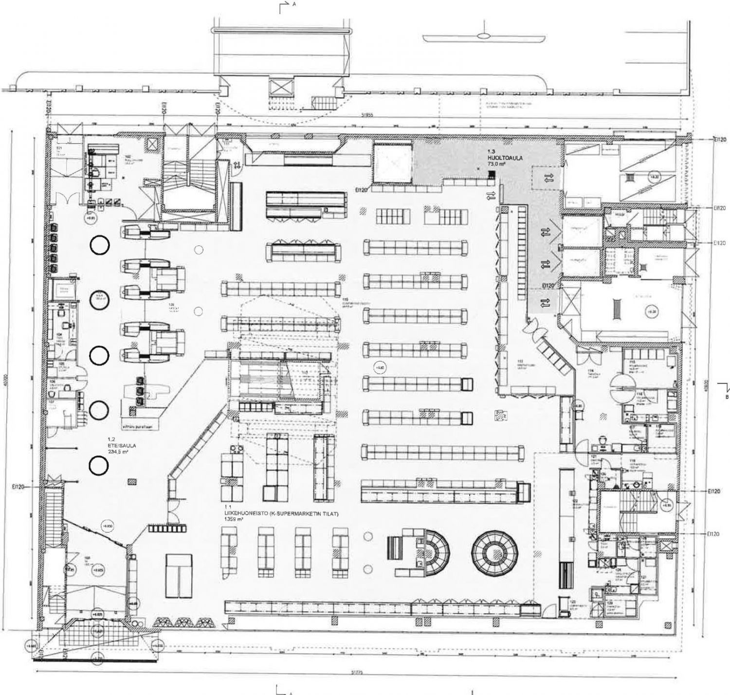
Oulun Keskustassa katutason liiketilaa, joka on mahdollista myös jakaa pienempään. Kauppakeskus Valkean edustalla kävelykadun varrella oleva liiketila on erittäin keskeisellä paikalla Oulussa. Lastauslaituri on käytettävissä tilan takaosassa, jossa myös tavarahissit kellariin, josta on myös tarvittaessa varastotilaa vuokrattavana lisäksi. Kellarista löytyy muun muassa kylmiöiksi tehtyjä huoneita.
Tässä oiva mahdollisuus myymälälle tai toimistoksi. Talossa toimii tällä hetkellä Tokmanni ja Pihlajalinna.
Tila on heti vapaa vuokrattavaksi. Esittelyt ja lisätietoa Sami Valkonen 050 310 6520 tai sami.valkonen@op.fi
Kysy myös muista tiloista, autan mielelläni!
Tässä oiva mahdollisuus myymälälle tai toimistoksi. Talossa toimii tällä hetkellä Tokmanni ja Pihlajalinna.
Tila on heti vapaa vuokrattavaksi. Esittelyt ja lisätietoa 050 310 6520 tai sami.valkonen@op.fi
Kysy myös muista tiloista, autan mielelläni!
Jaettavissa
OP Koti Pohjoinen Oy LKV
Toimitila- ja vuokravälitys
Lekatie 6
90140 OULU
Julia Hoikkala
Myyntineuvottelija, Toimitilat, LVV, Trad.
Näytä puhelinnumero
050 411 8747
