Vuokrataan toimistotilat - Helsinki
Vattuniemenranta 2, Lauttasaari, 00210 Helsinki #10737410
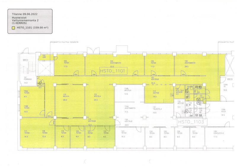
Vuokrattavana siistiä toimistotilaa ensimmäisessä kerroksessa. Tilassa on avotilaa sekä erillisiä huoneita.
Osoite
Vattuniemenranta 2, 00210 Helsinki
Tilatyyppi
Toimistotilaa
339 m2
Kiinteistö
Vuokrattavana siistiä toimistotilaa ensimmäisessä kerroksessa. Tilassa on avotilaa sekä erillisiä huoneita. Tila on muokattavissa asiakkaan tarpeen mukaan.
Sijainti
Lauttasaari, Helsinki
Pysäköinti
Pihalla vuokrattavia autopaikkoja.
Palvelut
-Lounasravintola
Kulkuyhteydet
- Metro
- Bussi
- Oma auto
- Bussi
- Oma auto
Vapautuu
Heti
Kerros
1
Energiatehokkuusluokka
Ei lain edellyttämää energiatodistusta
Näkyvällä paikalla
Hissi
Ota yhteyttä
REALIUM OY LKV
Tammasaarenkatu 1, 00180 Helsinki
Vaihde:
Näytä puhelinnumero
010 326 346
Tuomo Mäkelä
tuomo.makela@realium.fi
p.
Näytä puhelinnumero
044 050 1158
Joel Keto
joel.keto@realium.fi
p.
Näytä puhelinnumero
045 317 0330
KAIKKI TILAVAIHTOEHDOT KERRALLA!
SOITA - MEILAA JA TILAA NÄYTTÖ!
Ilmainen palvelu tilanhakijoille.
Kartoitamme parhaat tilavaihtoehdot.
Kaikki kohteet eivät ole netissä.
Pyydä lisätietoa
