Vuokrataan - Helsinki
Tallberginkatu 2, Ruoholahti, 00180 Helsinki #10735392
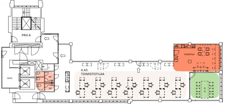
Vuokrattavana täysin remontoitu ja valoisa 4.kerroksen toimisto (246 m2) . Avotilaa, 2 neuvottelutilaa, yksi työhuone, wc:t ja keittiö./ lounge.
Sijainti Tallberginkadun ja Porkkalankadun risteyksessä on ihanteellinen julkisia liikenneyhteyksiä käyttäville. Ruoholahden metroasema on kävelyetäisyydellä ja lukuisat lännen suuntaan kulkevat bussilinjat pysähtyvät kivenheiton päässä. Pysäköintitilaa löytyy katujen varrelta sekä Ruoholahden pysäköintihallista.
Osoite
Tallberginkatu 2, 00180 Helsinki
Vapautuu
Kysy
Huoneiden lukumäärä
1
Energiatehokkuusluokka
Ei lain edellyttämää energiatodistusta
Ota yhteyttä
RHG Real Estate
Hämeenkatu 2 B20, 20500 Turku
Näytä puhelinnumero
020 734 4020
Heli Reinberg
Näytä puhelinnumero
040 647 4900
Pyydä lisätietoa
