Vuokrataan toimistotilat - Helsinki
Pohjoisranta 1, Kruunuhaka, 00170 Helsinki #10735155
Meritulli 1/ Pohjoisranta 1, ainutlaatuinen arvokiinteistö, jonka vuokralaisista aidosti välitetään. Huolella hoidetusta, upeasta kiinteistöstä vapautuu vuokrattavaa toimistotilaa keväällä 2022.
Osoite
Pohjoisranta 1, 00170 Helsinki
Tilatyyppi
Toimistotilaa
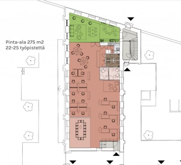
275 m2
Kiinteistö
Pohjoisrannasta, ihastuttavat tilat. Valmistuvat nyt kesän kynnyksellä, ja mahd. vaikuttaa tiloihin Kiinteistössä kiinnitetty huomiota hyvään sisäilmaan, valaistukseen ja akustiikkaan.
Pysäköinti
Lähialueella lukuisia parkkihalleja. Kiinteistöllä oma pieni parkkihalli, pyörille löytyy omat tilat. Ja työmatkapyöräilijat on huomioitu sosiaalitiloilla.
Kulkuyhteydet
Raitionvaunuyhteys tuo Hakaniemestä, Katajanokalta, Kaivopuiston suunnalta ja ydinkeskustasta talon liepeille. Kallion, Munkkisaaren välillä kulkeva bussilinja 17 pysähtyy kiinteistön viereen. Paikalle pääsee lisäksi kätevästi omalla tai kaupunkipyörällä.
Vapautuu
18.07.2023
Kerros
Katutaso
Ota yhteyttä
TopReal
Hietalahdenranta 17 B, 00180 Helsinki
Näytä puhelinnumero
09 6227 7852
Soita ja kysy lisää, tai tutustu www-sivuihimme!
http://www.topreal.fiPyydä lisätietoa
