Vuokrataan liiketilat - Raahe
Sovionkatu 12 -14, Keskusta, 92100 Raahe #10734901
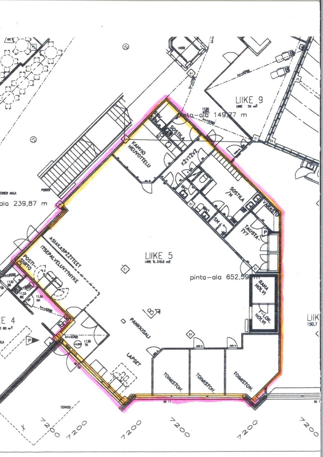
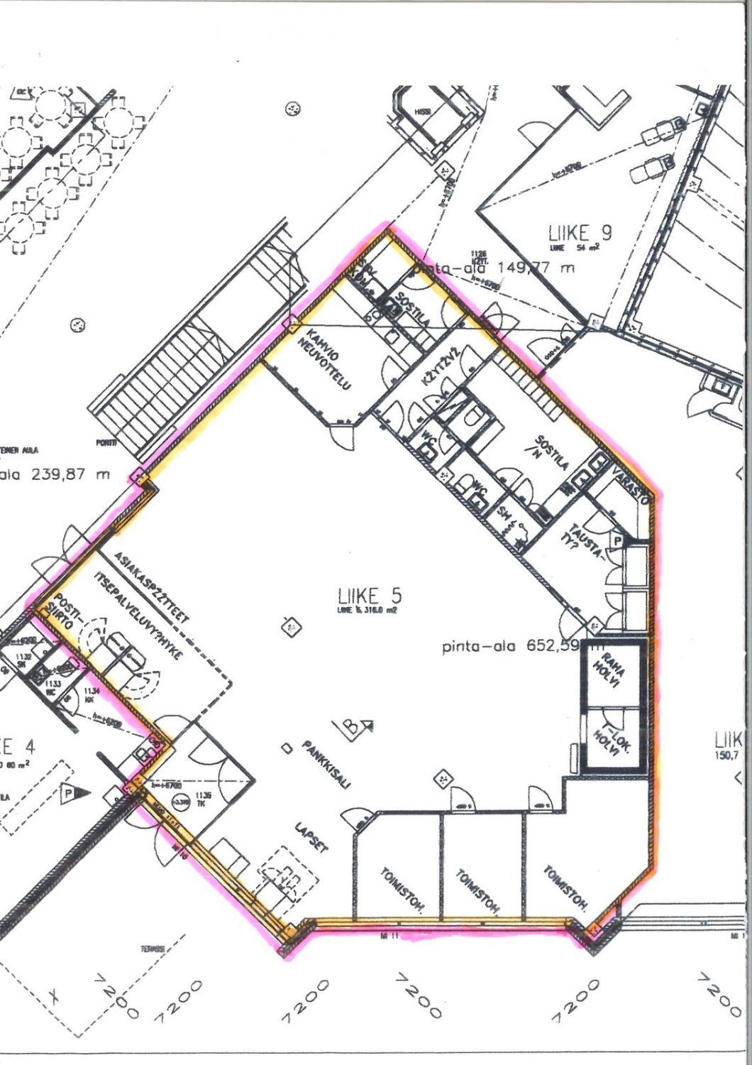
Raahen keskustassa katutason liiketila. Entinen pankkisali 320 m2 oheistiloineen. Erittäin hyvä kunto, käyttöönotettu 2003. Heti vapaa.
Osoite
Sovionkatu 12 -14, 92100 Raahe
Tilatyyppi
Liiketilaa
320 m2
Tilajako
Jaettavissa
Tila on jaettavissa.
Vuokra
3200.00
Vapautuu
Heti
Jaettavissa
Ota yhteyttä
OP Koti Pohjoinen Oy LKV
Raahe
Kirkkokatu 34
92100 RAAHE
Olemme avoinna sopimuksen mukaan, p.
Näytä puhelinnumero
010 257 6285
Jaana Pehkonen
Myyntineuvottelija
Näytä puhelinnumero
+358 50 466 8191
Pyydä lisätietoa
