Vuokrataan toimistotilat - Helsinki
Urho Kekkosen Katu 3-7, Kamppi, 00100 Helsinki #10734809
Laadukasta toimistotilaa Kampista
Osoite
Urho Kekkosen Katu 3-7, 00100 Helsinki
Tilatyyppi
Toimistotilaa
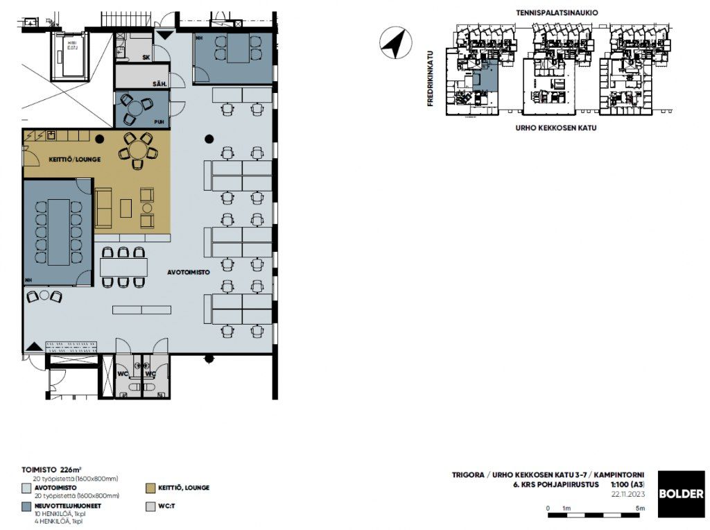
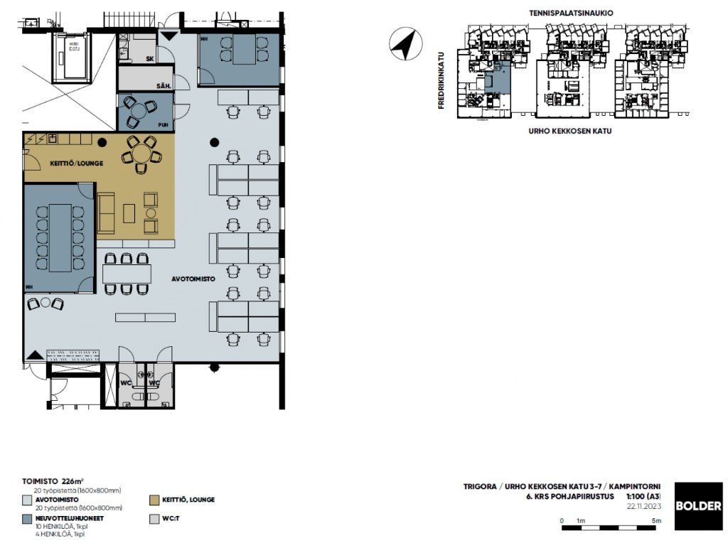
226 m2
Pysäköinti
Hallissa
Muuta
Vuokrattavana moderni 226 m² toimistotila erinomaisella sijainnilla Kampin ytimessä, Trigoran kiinteistössä.
Toimistotilan pohjaratkaisu ja viimeistely voidaan räätälöidä vuokralaisen toiveiden mukaisesti, mikä mahdollistaa tilan monipuolisen käytön eri tarpeisiin.
Vuonna 2005 valmistunut Trigoran kiinteistö koostuu kolmesta tornista, ja sen on suunnitellut arkkitehti Pekka Helin.
Toimistotiloista on suora yhteys Kampin kauppakeskukseen, joka tarjoaa kattavasti palveluita, ravintoloita, kauppoja sekä sujuvat julkisen liikenteen yhteydet ja pysäköintitilat aivan vieressä.
Tervetuloa tutustumaan, varaathan välittäjältä oman esittelyaikasi. Voit kysyä meiltä myös muita sopivia vaihtoehtoja, kauttamme löydät juuri Teidän tarpeisiinne sopivat tilat.
Palvelumme on tilanhakijalle veloitukseton!
Toimistotilan pohjaratkaisu ja viimeistely voidaan räätälöidä vuokralaisen toiveiden mukaisesti, mikä mahdollistaa tilan monipuolisen käytön eri tarpeisiin.
Vuonna 2005 valmistunut Trigoran kiinteistö koostuu kolmesta tornista, ja sen on suunnitellut arkkitehti Pekka Helin.
Toimistotiloista on suora yhteys Kampin kauppakeskukseen, joka tarjoaa kattavasti palveluita, ravintoloita, kauppoja sekä sujuvat julkisen liikenteen yhteydet ja pysäköintitilat aivan vieressä.
Tervetuloa tutustumaan, varaathan välittäjältä oman esittelyaikasi. Voit kysyä meiltä myös muita sopivia vaihtoehtoja, kauttamme löydät juuri Teidän tarpeisiinne sopivat tilat.
Palvelumme on tilanhakijalle veloitukseton!
Vapautuu
Kysy
Rakennusvuosi
2005
Kerros
6
Ota yhteyttä
Tuloskiinteistöt Oy
Rikhardinkatu 2 B 5, 00130 Helsinki
Näytä puhelinnumero
(09) 6841 620
Nina Meyke
Commercial Real Estate Advisor
Näytä puhelinnumero
+358 50 466 1519
Otto Ahtola
Commercial Real Estate Advisor
Näytä puhelinnumero
+358 40 042 2830
Pyydä lisätietoa
