Vuokrataan - Helsinki
Paciuksenkatu 27, 00270 Helsinki #10734587
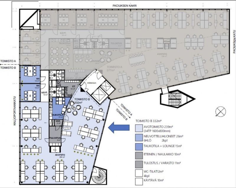
Vuokrataan Paciuksenkadulla toisen kerroksen 332m2 toimistotila vehrein näkymin Meilahden arboretumiin, kivenheiton päässä Meilahden Kampuksesta Tilaan mahtuu työskentelemään noin 35 henkilöä. Tilat muokataan ja remontoidaan vuokralaisen tarpeen mukaan.
Näyttävän näköinen ja helposti saavutettava kiinteistö sijaitsee Meilahdessa. Paciuksenkatu 27-kiinteistö sijaitsee liikenteen solmukohdassa ja on helposti saavutettavissa niin julkisilla kulkuvälineillä että autolla. Lähi- ja kaukoliikenteet bussit kuin 4-raitiovaunulinja pysähtyvät talon lähettyville. Oman auton saa kätevästi parkkiin halliin tai pihalle. Pyöräilijöille löytyy pyöräparkki ja sosiaalitilat.
Kiinteistön ylimmässä kerroksessa on vuokrattavissa neuvottelu-/saunatila vuokralaisten käyttöön. Lisäksi viereisissä kiinteistöissä toimii kolme erilaista lounasravintolaa ja päivittäistavarakauppa sijaitsee vastapäätä.
Kysy lisää Jouko Raitanen Helsinki puh. 0504695444
RHG Real Estate
Hämeenkatu 2 B20, 20500 Turku
Näytä puhelinnumero
020 734 4020
Jouko Raitanen
Näytä puhelinnumero
050 469 5444
