Myydään toimistotilat, liiketilat, näyttelytilat - Oulu
Uusikatu 35, 90100 Oulu #10734467
Myydään Uudenkadun varrelta erittäin näkyvältä paikalta siistissä kunnossa oleva liikehuoneisto!
Huoneisto sijaitsee Technopoliksen naapurissa ja ydinkeskustan palvelut ovat kiven heiton päässä.
Huoneisto sopii erinomaisesti myös toimistokäyttöön.
Osoite
Uusikatu 35, 90100 Oulu
Tilatyyppi
Toimistotilaa
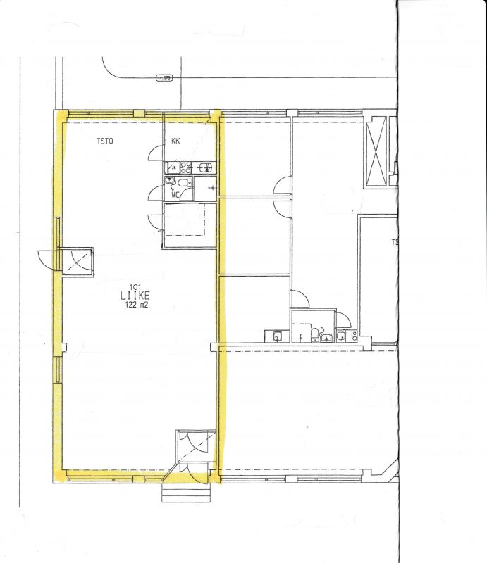
122 m2
Liiketilaa
122 m2
Näyttelytilaa
122 m2
Yhteensä
122 m2
Pohjapiirros
Myyntihinta
148.000 EUR
Sijainti
Ydinkeskustan tuntumassa
Pysäköinti
2 lämpöpaikkaa ja asiakkaille kiekkopaikat ympäristössä
Vapautuu
01.10.2022
Rakennusvuosi
1985
Kerros
1 / 3
Energiatehokkuusluokka
F2013
E-luku
253 kWhE/m²/vuosi
Katutasossa
Näkyvällä paikalla
Ota yhteyttä
Pohjois-Suomen Toimitilat Oy
Sepänkatu 20, 90100 Oulu
Pekka Valkola
Näytä puhelinnumero
044 311 0555
Pyydä lisätietoa
