Vuokrataan varastotilat - Porvoo
Mannerheiminkatu 7, 06100 Porvoo #10734067
Vuokrataan kaksi varastotilaa Porvoon keskustassa! Vuokra: 5,80 €/m² + alv
Osoite
Mannerheiminkatu 7, 06100 Porvoo
Tilatyyppi
Varastotilaa
57 - 172 m2
Vuokra
5,80 €/m² + alv
Muuta
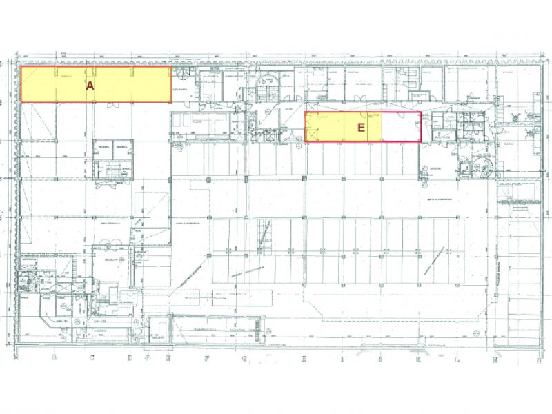
Porvoon keskustassa on vuokrattavana kaksi varastotilaa ison asuin- ja liikerakennuksen kellarissa. Varasto A on noin 115 m², halli E noin 57 m². Tilat on merkitty pohjakuvaan keltaisella värillä.
Tilat ovat siistissä kunnossa ja vuokralaisella on muiden toimijoiden kanssa yhteiskäytössä pieni keittiö, suihku ja kaksi wc:tä.
Varastohalleihin kuljetaan lastauslaitureiden ja käytävän kautta. Lastauslaitureita on kolme erikokoista. Ne sijaitsevat isossa pysäköintihallissa, johon kuljetaan viereisen liikerakennuksen ajoluiskan kautta.
Vuokralaisella ei tällä hetkellä ole hallissa omaa pysäköintipaikkaa, mutta jonotuslistalle voi ilmoittautua. Tilapäispysäköintiin voidaan järjestää lupa niin, että tavaroita tuodessa tai hakiessa auton voi pysäköidä halliin.
Huokeat tilat – soita ja vuokraa käyttöösi!
Kohdetiedot
Sijainti
Katuosoite: Mannerheiminkatu 7, 06100 Porvoo
Kaupunginosa: Keskusta
Ympäristö: Kaupungin keskusta, asuin- ja liikerakennuksia
Rakennus/huoneisto
Pinta-alat: Varasto A noin 115 m², varasto E noin 57 m²
Kiinteistötyyppi: Kerrostalo, asuin- ja liikerakennus
Tilatyyppi: Varastotila
Kunto, varusteet ja palvelut: Hyvä peruskunto, käytössä lastauslaiturit, yhteiskäytössä keittiö, suihku ja wc, kaikki Porvoon keskustan palvelut aivan vieressä
Lämmitys: Kaukolämpö
Vapautuu: Heti vapaa
Vuokrahinta ja kulut
Kuukausivuokra: 5,80 €/m² + alv
Sähkö- ja vesimaksu: 50 €/kk (veloitus tarkastetaan vuokralaisen toiminnan perusteella)
Lämmitys: Sisältyy vuokraan
Muuta: Minimisopimuskausi 12 kk, vakuus 3 kk:n vuokraa vastaava summa, luottotietojen on oltava kunnossa
Tilat ovat siistissä kunnossa ja vuokralaisella on muiden toimijoiden kanssa yhteiskäytössä pieni keittiö, suihku ja kaksi wc:tä.
Varastohalleihin kuljetaan lastauslaitureiden ja käytävän kautta. Lastauslaitureita on kolme erikokoista. Ne sijaitsevat isossa pysäköintihallissa, johon kuljetaan viereisen liikerakennuksen ajoluiskan kautta.
Vuokralaisella ei tällä hetkellä ole hallissa omaa pysäköintipaikkaa, mutta jonotuslistalle voi ilmoittautua. Tilapäispysäköintiin voidaan järjestää lupa niin, että tavaroita tuodessa tai hakiessa auton voi pysäköidä halliin.
Huokeat tilat – soita ja vuokraa käyttöösi!
Kohdetiedot
Sijainti
Katuosoite: Mannerheiminkatu 7, 06100 Porvoo
Kaupunginosa: Keskusta
Ympäristö: Kaupungin keskusta, asuin- ja liikerakennuksia
Rakennus/huoneisto
Pinta-alat: Varasto A noin 115 m², varasto E noin 57 m²
Kiinteistötyyppi: Kerrostalo, asuin- ja liikerakennus
Tilatyyppi: Varastotila
Kunto, varusteet ja palvelut: Hyvä peruskunto, käytössä lastauslaiturit, yhteiskäytössä keittiö, suihku ja wc, kaikki Porvoon keskustan palvelut aivan vieressä
Lämmitys: Kaukolämpö
Vapautuu: Heti vapaa
Vuokrahinta ja kulut
Kuukausivuokra: 5,80 €/m² + alv
Sähkö- ja vesimaksu: 50 €/kk (veloitus tarkastetaan vuokralaisen toiminnan perusteella)
Lämmitys: Sisältyy vuokraan
Muuta: Minimisopimuskausi 12 kk, vakuus 3 kk:n vuokraa vastaava summa, luottotietojen on oltava kunnossa
Vapautuu
Heti
Ota yhteyttä
Tilat.fi
KTM, LKV Antti Soivio
Näytä puhelinnumero
0400 446 553
OTM, LKV Riikka Tuominen
Näytä puhelinnumero
0400 551 790
KTM, LKV Maria-Sofia Puhakka
Näytä puhelinnumero
0400-150330
Yrityksen virallinen nimi: LKV Toimitilaa.fi Oy. Toimitilojen välitykseen erikoistunut yritys.
http://www.tilat.fiPyydä lisätietoa
