Vuokrataan toimistotilat - Espoo
Piispanportti 10, Piispankylä, 02200 Espoo #10733655
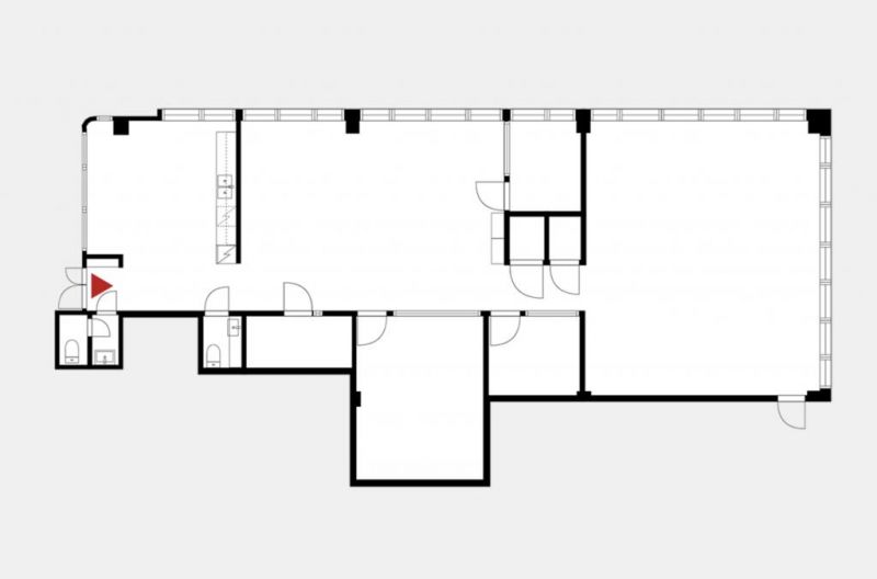
Vuokrataan viidennen kerroksen 215m2 avotoimistotila. Tilasta löytyy avotilan lisäksi keittiö, wc-tilat sekä neuvotteluhuone. Kiinteistöstä löytyy muun muassa aulapalvelu sekä lounasravintola kokoustiloineen. Kiinteistön keskeisen sijainnin ansiosta erilaiset palvelut löytyvät läheltä, sekä liikkuminen niin autolla kuin julkisilla kulkuvälineillä on helppoa.
Kysy lisää Jouko Raitanen Helsinki puh. 0504695444
Osoite
Piispanportti 10, 02200 Espoo
Tilatyyppi
Toimistotilaa
215 m2
Vapautuu
Kysy
Huoneiden lukumäärä
1
Energiatehokkuusluokka
Ei lain edellyttämää energiatodistusta
Ota yhteyttä
RHG Real Estate
Hämeenkatu 2 B20, 20500 Turku
Näytä puhelinnumero
020 734 4020
Jouko Raitanen
Näytä puhelinnumero
050 469 5444
Pyydä lisätietoa
