Vuokrataan - Lahti
Askonkatu 9, Askonalue, 15100 Lahti #10733554
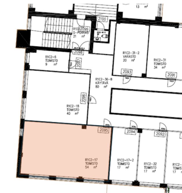
Vuokrattavana edullinen toimistotila (54 m2) Askonalueelta Matkakeskuksen läheltä. Avotoimisto sijaitsee 2.kerroksessa talon vanhemmassa osassa.. Yhteiskäyttöiset neuvottelu-, keittiö ja sosiaalitilat.
Uniikki ja nopeasti kehittyvä Askonalue tarjoa erilaisia tilaratkaisuja. Teollisuushenkisestä kiinteistöstä löytyy ainutlaatuisesti uudistettuja tiloja sekä ns raakaa tilaa, joka räätälöidään asiakkaan tarpeiden mukaan. Vuokralaisia ja heidän vieraita palvelee kaksi ravintolaa ja kokouskeskus.
Kysy lisää sp: heli.reinberg@rhg.fi.
Osoite
Askonkatu 9, 15100 Lahti
Vapautuu
Kysy
Huoneiden lukumäärä
1
Energiatehokkuusluokka
Ei lain edellyttämää energiatodistusta
Ota yhteyttä
RHG Real Estate
Hämeenkatu 2 B20, 20500 Turku
Heli Reinberg
Näytä puhelinnumero
040 647 4900
Pyydä lisätietoa
